• Sledovat cenu
  •  

Zasílání upozornění emailem:

Pozemek k bydlení 1184 m2 - Česká , okr. Brno-venkov

Cena: 15 490 000 Kč
Stav:Volný
parcela: 1184m2
Popis: Dovolujeme si Vám nabídnout prodej pozemku s vydaným stavebním povolením na výstavbu třípodlažního rodinného domu. Jedná se o jedinečný slunný pozemek na úplném okraji obce Česká u Brna v naprostém klidu a přitom s velice do...brou občanskou dostupností do centra Brna.

Výměry:
- Pozemek celkem: 1184 m2
- Zastavěná plocha RD (rodinný dům): 202 m2
- Užitná plocha: 378, 13 m2
- Dispozice: 7kk

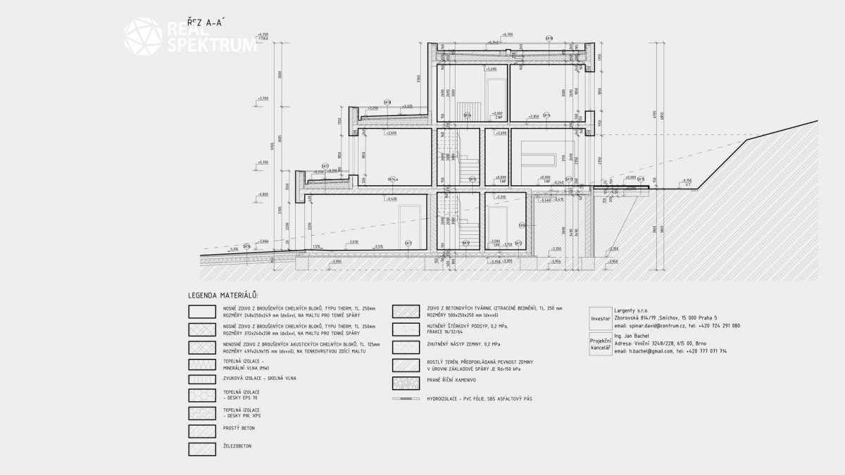
Celková podlahová plocha (včetně terasy): 378, 13 m2:
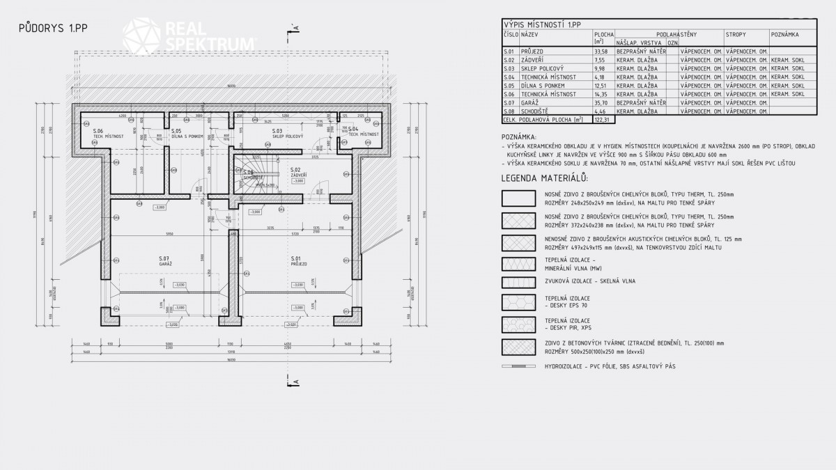
- 1. PP – 122, 31 m2 (garáže, technická místnost, dílna, sklep)
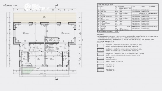
- 1. NP (první nadzemní patro) – 174, 65 m2 (obývací pokoj s kuchyňským koutem, 2 krát ložnice, sociální zařízení WC, koupelna) + terasa
- 2. NP (druhé nadzemní patro) – 81, 17 m2 (3 krát pokoj, sociální zařízení WC, koupelna)

Vstup do rodinného domu je z čelní strany. Ze zádveří je přístup do sklepu policového, ze kterého je následně přístup do technické místnosti a do dílny. Z dílny je přístup do technické místnosti a garáže. Ze zádveří je přístup na schodiště do 1. NP (první nadzemní patro). V 1. NP (první nadzemní patro) je přístup z chodby do pracovny, sociální zařízení WC, kuchyně s jídelním koutem a obývacího pokoje. Z obývacího je přístup na terasu, do ložnice, šatny a koupelny. Z chodby je dále přístup na schodiště do 2. NP (druhé nadzemní patro). V 2. NP (druhé nadzemní patro) je koupelna a 3 pokoje.
Na hranici pozemku je zavedena elektřina, voda a odpad a studna. Pro bližší informace mě neváhejte kontaktovat.
  • Vložení inzerátu:
    25.4.2025
  • Kód:
    N/RSB/21080/25
  • K dispozici od:
    0.0.0
  • Typ nemovitosti:
    Pozemek k bydlení
  • Voda:
    dálkový vodovod
  • Elektřina:
    230 V, 380 V
  • Odpad:
    kanalizace
  • Nabídky v okolí:
  • Informace o obci:
    Obec Česká má 902 obyvatel, z toho 618 v produktivním věku.
    V obci je rozvod kanalizace.
    V obci je rozvod městské vody.
    V obci je rozvod plynu.
Lokalita: Česká , okres Brno-venkov, Česká republika Česká , okr. Brno-venkov, Jihomoravský kraj

Kontakt

Jan Ryšavý


Podobné nabídky v okolí


Volná pracovní místa ExpertPrace.cz
  • Objednání prohlídky a více informací
  •  
  • Poslat na e-mail
  •  

Zasílání odkazu na realitu emailem: