• Sledovat cenu
  •  

Zasílání upozornění emailem:

Pozemek k bydlení 1126 m2 - Podhradí, okr. Cheb (již není v nabídce)

Cena: 1 790 000 Kč
Stav:archiv
parcela: 1126m2
Popis: Exkluzivní nabídka prodeje stavebního pozemku o výměře 1126 m2 v klidné obci Podhradí u Aše. Obec se nachází pouhé 3 km od města Aš, které disponuje kompletní občanskou vybaveností. Dopravu zajišťuje pravidelné ...autobusové spojení. Historickou dominantou obce je Kostel Dobrého pastýře a Zřícenina hradu Neuberg. Okolní příroda přímo vybízí k pěší a cyklo turistice. Pouhých 6 km se nachází Německé lázeňské město Bad Elster a Německé město Selb 12km.

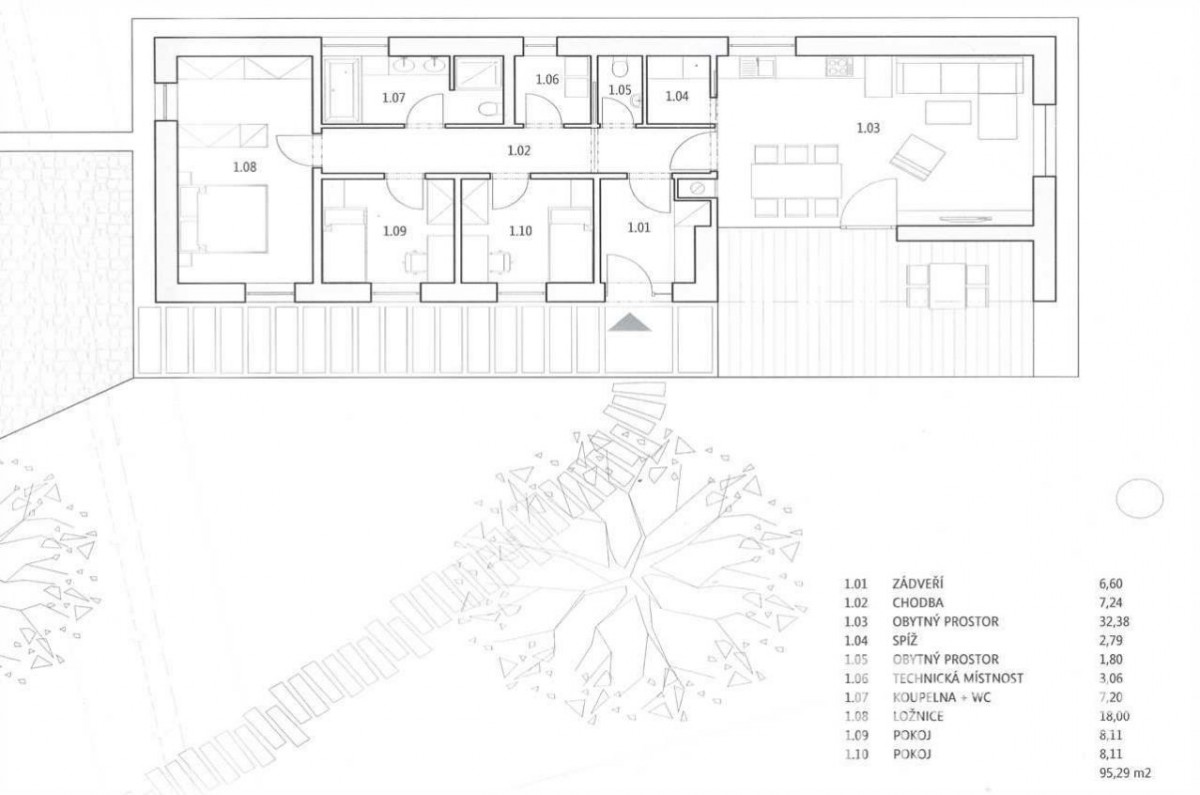
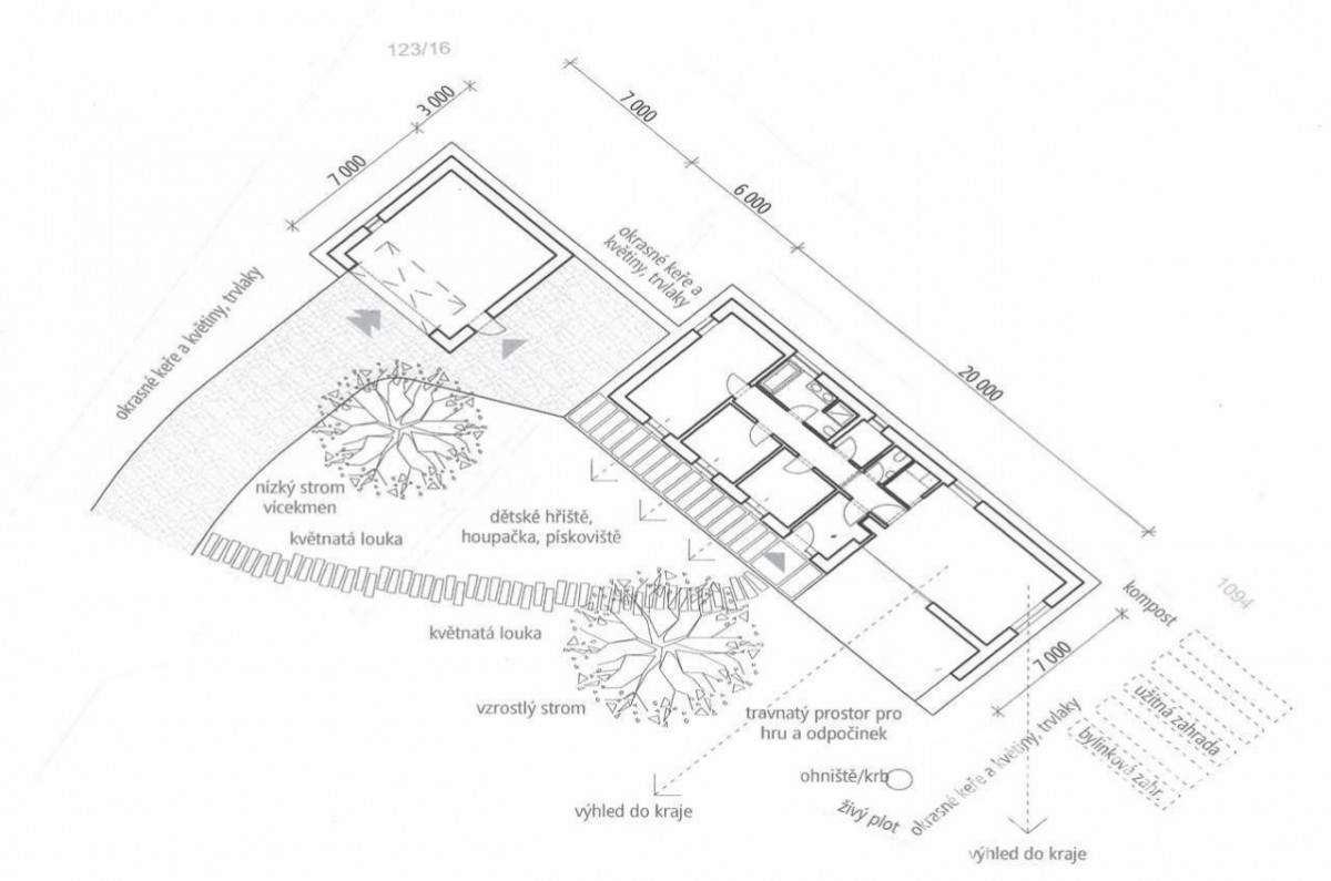
Předmětem koupě je také spoluvlastnický podíl na pozemku, který zajišťuje příjezdovou cestu. Součástí nabídky je dále stavební projekt rodinného domu a garáže včetně stavebního povolení. Projektovaný dům o podlahové ploše 95, 29 m2 řešený jako 4+kk. Samostatně stojící garáž pro dvě osobní auta. U pozemku je připraveno připojení na kanalizaci, obecní vodovod a elektřinu. Energetická náročnost projektovaného domu je třída B - Velmi úsporná.

Možnost financování hypotečním úvěrem, který pro Vás rádi vyřídíme. V případě více zájemců o nemovitost, si majitel vyhrazuje právo prodat nemovitost zájemci s nejvyšší nabídkou.
  • Vložení inzerátu:
    25.10.2022
  • Kód:
    18887
  • Typ nemovitosti:
    Pozemek k bydlení
  • Voda:
    dálkový vodovod
  • Elektřina:
    230 V
  • Doprava:
    silnice, autobus
  • Odpad:
    kanalizace
  • Bezbariérový přístup:
    Ano
  • Nabídky v okolí:
  • Informace o obci:
    Obec Podhradí má 172 obyvatel, z toho 116 v produktivním věku.
    V obci se nachází pošta.
    V obci je rozvod kanalizace.
    V obci je rozvod městské vody.

Podobné nabídky v okolí

Lokalita: Podhradí, okres Cheb, Česká republika Podhradí, okr. Cheb, Karlovarský kraj