• Sledovat cenu
  •  

Zasílání upozornění emailem:

Pozemek k bydlení 1106 m2 - Za dálnicí, Praha-Zbraslav, Praha (již není v nabídce)

Cena: 10 451 700 Kč
Stav:archiv
parcela: 1106m2
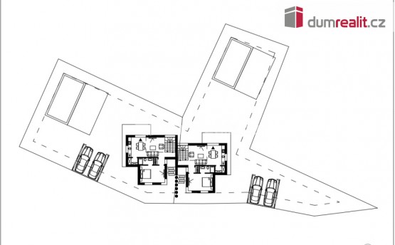
Popis: vč 21% DPH, právního servisu a odměny RK. Nabízíme soubor 4 pozemků o celkové výměře 1. 106 m² určených k výstavbě, na lukrativním místě plném zeleně a s minimální okolní zástavbou v ulici Za dálnicí na Praze 5 – Zbraslavi..., včetně dokumentace ke stavebnímu povolení dvou rodinných domů.

Pozemky jsou v územním plánu vedené jako SV - všeobecně smíšené, hlavní využití: plochy pro umístění polyfunkčních staveb nebo kombinaci monofunkčních staveb pro bydlení, obchod, administrativu, kulturu, veřejné vybavení, sport a služby.
Odbor územního rozvoje Hlavního města Prahy vydal kladné vyjádření k dokumentaci ke stavebnímu povolení pro výstavbu dvou rodinných domů se zastavěnou plochou 2 krát 76 m² a užitnou plochou 2 krát 130 m². El. přípojka v místě, zdroj vody bude řešený vrtanými studnami - v budoucnu lze objekty napojit na nový vodovod v ulici a odpad bude sveden do bezodtokových jímek (žumpy), nebo domácí ČOV (osobní vlastnictví).

Pěkné a klidné místo obklopené přírodou, moc hezké procházky nebo cyklovýlety v přírodním parku Hřebeny, oboře Daliborka a kolem Vltavy. Přímé napojení na Strakonickou výpadovku, do 15 min autem na metro B Smíchovské nádraží, nebo do 30 min autobusem.

Uvedená cena je včetně 21% DPH, právního servisu a provize RK a projektové dokumentace k výstavbě.
Dobrá investice, s bankovním financováním pomůžeme – zařídíme. Ev. číslo: 647985.

Podobné nabídky v okolí

Lokalita: Za dálnicí , Praha-Zbraslav, Praha, Česká republika Za dálnicí, Praha-Zbraslav, Praha