• Sledovat cenu
  •  

Zasílání upozornění emailem:

Pozemek 9892 m2 - Průmyslová zóna , Bavoryně, okr. Beroun

Cena: 1 990 Kč/m2
Stav:Volný
parcela: 9892m2
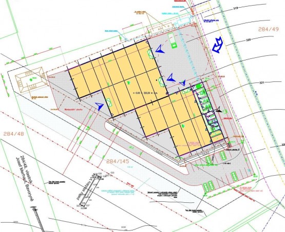
Popis: Nabízíme prodej průmyslového pozemku s vydaným ÚR na halu 2031 m2 zast. plochy. Bavoryně - Exit D5.
- - - - - - - - - - - - - - - - - - - - - - - - - - - - - - - - - - - - ... - - - - - - - -
Velikost pozemku celkem 9. 892 m2
- Velikost zastavěné plochy haly 2. 031 m2
- Velikost zpevněných ploch a manipulace 2. 065 m2
- ostatní (zeleň, ploty a pod ) 5. 796 m2

Cena za celek 1990 Kč/m2
- - - - - - - - - - - - - - - - - - - - - - - - - - - - - - - - - - - - - - - - - -
Rovinný pozemek se nachází v Průmyslové nově vzniklé zóně Bavoryně, v blízkosti Editu dálnice D5. Pozemek je z části omezen VN a ochranným pásmem. Byla vypracována a schválena studie zastavitelnosti a to stavbou cca 2000 m2, a zpevněnými plochami cca 2000 m2. Komunikace pro příjezd buduje obec Bavoryně. Přípojky projednány a odsouhlaseny, Lze zaslat plné znění UR, jež popisuje napojení areálu a jejich specifikace. Průmyslová hala vhodná pro sklad či výrobu. Administrativní zázemí - viz foto.
Prodej - rezervace - možno ihned.

ČERNÝ Pavel
- - - - - - - - - - - - - - - - 2025 - - - - - - - - - - - - - - - - - - - - - - -
ARCHA - průmyslová kancelář ( Praha, Beroun )

- Prodej a pronájem skladů/dílen/kanceláří
- Prodej pozemků pro průmysl
- Výstavba skladů/dílen/areálů pro logistiku
  • Vložení inzerátu:
    24.10.2025
  • Kód:
    2896
  • Typ nemovitosti:
    Pozemek k podnikání
  • Bezbariérový přístup:
    Ano
Lokalita: Průmyslová zóna , Bavoryně, okres Beroun, Česká republika Průmyslová zóna , Bavoryně, okr. Beroun, Středočeský kraj


Podobné nabídky v okolí


Volná pracovní místa ExpertPrace.cz
  • Objednání prohlídky a více informací
  •  
  • Poslat na e-mail
  •  

Zasílání odkazu na realitu emailem: