• Sledovat cenu
  •  

Zasílání upozornění emailem:

Pozemek 8137 m2 - Tymákov , okr. Plzeň-město (již není v nabídce)

Cena: 2 160 000 Kč
Stav:archiv
parcela: 8137m2
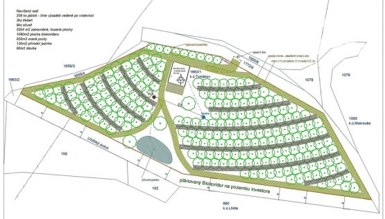
Popis: Ve výhradním zastoupení majitelů nabízíme k prodeji pozemek o výměře 8. 137 m2, určený k výsadbě ovocného sadu. Celý pozemek je mírně svažitý k jižní straně, kde hranici pozemku lemuje potok. Pozemek je zasíťov...án elektřinou, k dispozici bude také vodovodní vrt. Pozemek je situován, v klidné a příjemné lokalitě mimo zastavěné území obce Tymákov. Lokalita je přístupná po obecní kominikaci. Po výsadbě sadu je možné vystavět obslužnou stavbu sadu. Na celou lokalitu je zpracován projekt. Požadovaná cena zahrnuje již výsadbu stromů a oplocení, bez těchto úprav je možné cenu upravit.
  • Vložení inzerátu:
    16.5.2018
  • Kód:
    00117
  • K dispozici od:
    0.0.0
  • Typ nemovitosti:
    Ostatní pozemky
  • Voda:
    místní zdroj
  • Elektřina:
    230 V, 380 V
  • Nabídky v okolí:
  • Informace o obci:
    Obec Tymákov má 724 obyvatel, z toho 498 v produktivním věku.
    V obci se nachází pošta.
    V obci se nachází zdravotní zařízení.
    V obci je rozvod kanalizace.
    V obci je rozvod městské vody.
    V obci je rozvod plynu.

Podobné nabídky v okolí

Lokalita: Tymákov , okres Plzeň-město, Česká republika Tymákov , okr. Plzeň-město, Plzeňský kraj