• Sledovat cenu
  •  

Zasílání upozornění emailem:

Pozemek 33237 m2 - Zdice, okr. Beroun (již není v nabídce)

Cena: 899 Kč/m2
Stav:archiv
parcela: 33237m2
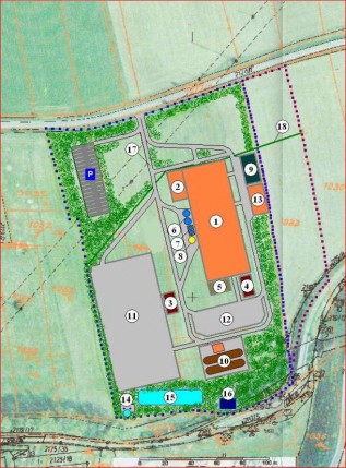
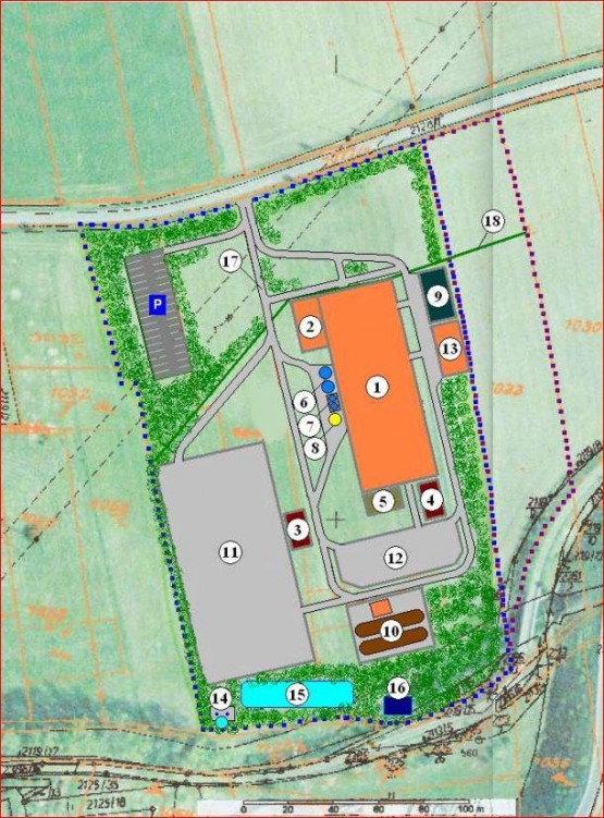
Popis: Prodej pozemku v Průmyslové zóně, EXIT dálnice D5, Zdice.

Plocha pozemku: 33. 237 m2
Cena prodeje: dnes jen 899 Kč/m2


Charakteristika pozemku: rovinný s mírnou svažitostí směrem k dálnici D5.... Orná půda, nevyňato s půdního fondu (až na základě dílčího projektu), přímo přilehlé k silnici III. třídy, zadní objezd pozemku ( u D5 ) prozatím silnicí pro zemědělskou techniku, možno do budoucna počítat s objezdem pozemku povýšením této komunikace na místní nákladní komunikaci. Spoluúčast ostatních vlastníků.

Příjezdy - nájezdy: Nákladní doprava vede z dálnice D5 odbočením na místní komunikaci a dále je zde předběžné povolení Policie Beroun o zřízení odbočovacích nájezdů a výjezdů na pozemek ( zápis s dopravní komise ). Vybudování nájezdů, výjezdů popř. odbočovacích dopravních pruhů věcí a investicí kupujícího.

Energie:

Plyn k dispozici předběžný souhlas s připojením na Plynovou. regulační stanici vzdálenou cca 400 m.

Voda - k dispozici Měst. Rozvod ( středotlak ) vody Želivka cca 250 m vzdáleno, na křižovatce místních komunikací a Benzínové čerpací stanice.

Elektrická energie Střed. energetika: předběžný souhlas na připojení sloup VN /22kV vzdálen cca 50 m. Nutno naprojektovat Trafostanici. pro vlastní využití

Odpady: lze řešit vlastní čistící stanicí s odlučovačem ropných a jiných látek s přepadem do Hředelského potoka hranice pozemků.

Územní plán: Městská Průmyslová zóna, SVO, VN. , povinná zeleň 30%, Max. výška 11 m.

Dynamicky rozvíjející se lokalita vhodná pro výstavbu komerčního objektu pro výrobu, sklady, administrativní a obchodní využití. Vhodné i pro Track Parking, shop, bazar a podobně. .

Město Zdice a spádové obce regionu (cca 25 000 obyvatel) zajišťují dostatek obchodních příležitostí se silným potenciálem pracovních sil. Poloha na exitu dálnice umocňuje logistickou pozici budoucích objektů, s vždy bezproblémovou dostupností na expresní silniční tah.



** Obdobné nabídky a novinky můžeme zaslat na Váš email obratem.

Pokud Vás některá nabídka zaujme, kontaktujte nás o další informace a případnou prohlídku na místě.

Děkujeme.

ARCHA průmyslová kancelář s. r. o. ,
Praha, Beroun,
Tel: 608 827 778,
Mail: archa. beroun@seznam. cz
WWW: WWW. archacs. cz
  • Vložení inzerátu:
    28.2.2018
  • Kód:
    778/2392
  • Typ nemovitosti:
    Pozemek k podnikání
  • Bezbariérový přístup:
    Ano
  • Nabídky v okolí:
  • Informace o obci:
    Obec Zdice má 3973 obyvatel, z toho 2724 v produktivním věku.
    V obci se nachází pošta.
    V obci se nachází škola, popř. školka.
    V obci se nachází zdravotní zařízení.
    V obci je rozvod kanalizace.
    V obci je rozvod městské vody.
    V obci je rozvod plynu.

Podobné nabídky v okolí

Lokalita: Zdice, okres Beroun, Česká republika Zdice, okr. Beroun, Středočeský kraj