• Sledovat cenu
  •  

Zasílání upozornění emailem:

Pozemek 2674 m2 - Kejbaly, Brno, okr. Brno-město (již není v nabídce)

Cena: 6 089 Kč/m2
Stav:archiv
parcela: 2674m2
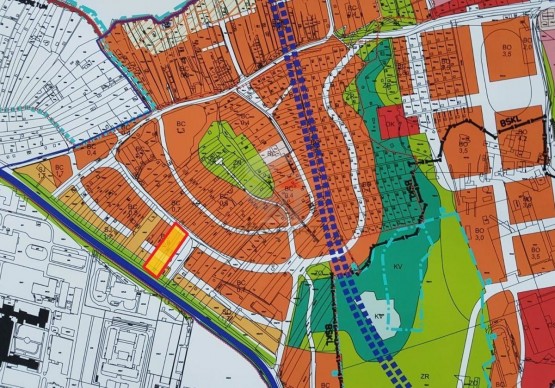
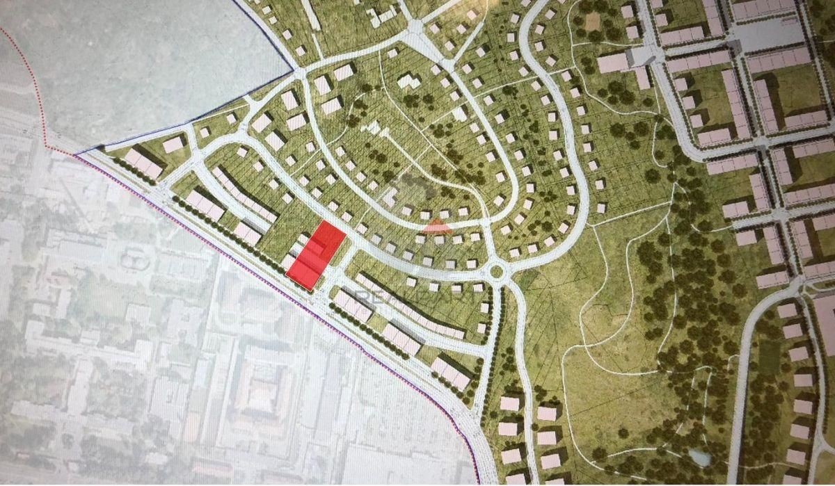
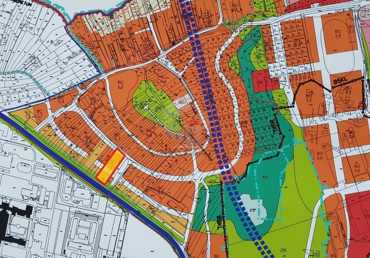
Popis: Prodej stavebního pozemku pro komerční výstavbu v Brně - Bohunicích. Pozemek o ploše 2674 m2 má obdélníkový tvar s uliční šíří 30 m. Dle aktuálního územního plánu a indexu PP lze zastavět cca 2000 m2... pro komerční účely (do 2. NP (druhé nadzemní patro)). Dle studie pro nový ÚP v r. 2022 je severní část pozemku určena již pro bydlení (cca 1100 m2) + v jižní části komerce (cca 900 m2). Příjezdová komunikace je napojena na veřejnou silnici. Na hranici pozemku je přivedena elektřina. Voda lze řešit studnou s čerpadlem, odpady zatím čističkou odpadních vod, než bude přivedena kanalizace. Pro více informací kontaktujte makléře.
  • Vložení inzerátu:
    6.8.2019
  • Kód:
    0010
  • Typ nemovitosti:
    Pozemek k podnikání
  • Umístění objektu:
    Centrum
  • Nabídky v okolí:
  • Informace o obci:
    Obec Brno má 371371 obyvatel, z toho 256490 v produktivním věku.
    V obci se nachází pošta.
    V obci se nachází škola, popř. školka.
    V obci se nachází zdravotní zařízení.
    V obci je rozvod kanalizace.
    V obci je rozvod městské vody.
    V obci je rozvod plynu.

Podobné nabídky v okolí

Lokalita: Kejbaly , Brno, okres Brno-město, Česká republika Kejbaly, Brno, okr. Brno-město