• Sledovat cenu
  •  

Zasílání upozornění emailem:

Obchodní prostory 46 m2 - Příkop 838, Brno, okr. Brno-město (již není v nabídce)

Cena: 2 799 000 Kč
Stav:archiv
46 m2, cihlová
Popis: Na základě výhradního zastoupení majitele Vám nabízíme prodej komerční jednotky v obchodní galerii
IBC v centru města Brna. Nebytová jednotka se nachází v přízemí na strategickém místě s velkou průchodností.

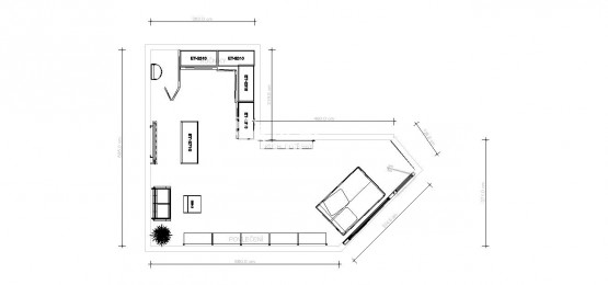
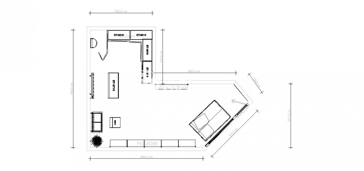
Celková výměra... komerčních prostor 45, 8 m2
Obchodní prostor půdorysně tvoří písmeno "L". V zadní části je k dispozici umyvadlo s teplou a studenou vodou. Díky této dispozici možné oddělení komerčních prostor a případného zázemí.

Obchodní prostor má nízké provozní náklady - 4. 618, - Kč/měs

Průkaz energetické náročnosti skupiny C

Bližší informace rád sdělím na níže uvedených kontaktech případně osobně v naší RK
  • Vložení inzerátu:
    15.11.2023
  • Kód:
    N/RSB/20310/23
  • K dispozici od:
    0.0.0
  • Typ nemovitosti:
    Obchodní prostory
  • Typ budovy:
    Cihlová
  • Podlaží:
    1
  • Podlahová plocha:
    46 m2
  • Stav objektu:
    Velmi dobrý
  • Energetická náročnost:
    C - Úsporná
  • Podle vyhlášky:
    c. 78/2013 Sb.
  • Ukazatel náročnosti:
    67 kWh/m2
  • Nabídky v okolí:
  • Informace o obci:
    Obec Brno má 371371 obyvatel, z toho 256490 v produktivním věku.
    V obci se nachází pošta.
    V obci se nachází škola, popř. školka.
    V obci se nachází zdravotní zařízení.
    V obci je rozvod kanalizace.
    V obci je rozvod městské vody.
    V obci je rozvod plynu.

Podobné nabídky v okolí

Lokalita: Příkop 838, Brno, okres Brno-město, Česká republika Příkop 838, Brno, okr. Brno-město