• Sledovat cenu
  •  

Zasílání upozornění emailem:

Obchodní prostory 1705 m2 - Palackého, Úpice, okr. Trutnov

Cena: 4 999 999 Kč
Stav:Volný
1705 m2, cihlová
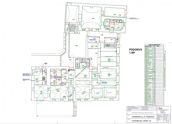
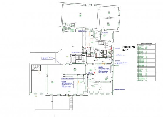
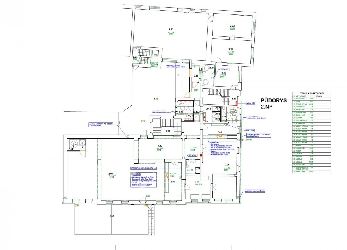
Popis: Představujeme vám jedinečnou investiční příležitost v obci Úpice – obchodní prostory o celkové ploše přibližně 1705 m2, rozprostírající se ve třech nadzemních podlažích. Tento objekt již prošel velice nákladnou a... důkladnou sanací spodní stavby, což představuje zásadní základ pro vaše budoucí plány a minimalizuje rizika spojená s nejnáročnější fází rekonstrukce. Přestože je dům připraven k dalším úpravám a transformaci podle vašich představ, klíčové stavební zásahy odvlhčení již byly dokončeny, což otevírá dveře k realizaci vašich vizí.
V současné době jsou prostory flexibilně využívány pro skladování nebo jako místo pro pořádání kulturních akcí, což dokazuje jejich okamžitou adaptabilitu. Druhé nadzemní podlaží bylo částečně zrekonstruováno právě pro tyto účely a nabízí moderní vzduchotechniku, kompletně zrekonstruované sociální zařízení a osazené požární hydranty, zajišťující bezpečnost a komfort pro návštěvníky. Tato již existující infrastruktura poskytuje okamžitou hodnotu a možnost generovat příjem, zatímco plánujete další rozvoj.
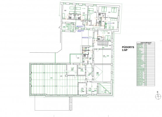
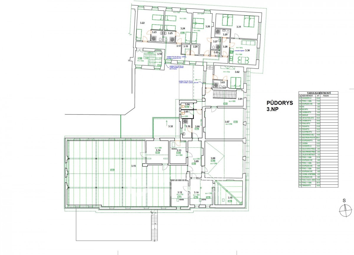
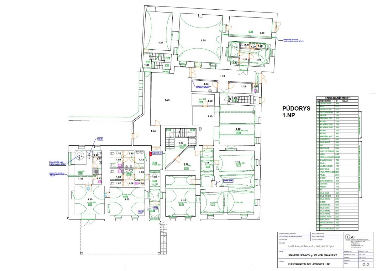
Kromě stávajícího stavu je součástí prodeje i kompletní projektová dokumentace, která detailně rozpracovává potenciál budovy. Podle tohoto projektu se v přízemí může nacházet atraktivní restaurace, v prvním nadzemním podlaží je pak plánován moderní bar, klubovna a veškeré potřebné zázemí. Druhé nadzemní podlaží je ideálně navrženo pro vytvoření komfortních bytových jednotek, což z objektu činí ideální mix pro komerční i rezidenční využití. Tato flexibilita otevírá široké spektrum investičních strategií, od pronájmu komerčních prostor po prodej bytů.
Tato nemovitost představuje mimořádnou šanci pro vizionáře a investory, kteří hledají projekt s pevným základem a jasnou cestou k budoucímu zhodnocení. S již provedenou sanací a připravenou projektovou dokumentací se jedná o investici s obrovským potenciálem v žádané lokalitě. Neváhejte a objevte všechny možnosti, které tento unikátní objekt v Úpici nabízí.
Kontaktujte nás pro bližší informace a prohlídku, abyste si mohli představit vaši budoucí úspěšnou realizaci.
  • Vložení inzerátu:
    13.4.2026
  • Kód:
    00226
  • K dispozici od:
    0.0.0
  • Typ nemovitosti:
    Obchodní prostory
  • Typ budovy:
    Cihlová
  • Podlahová plocha:
    1705 m2
  • Stav objektu:
    Dobrý
  • Telekomunikace:
    Internet
  • Elektřina:
    230 V, 380 V
  • Doprava:
    silnice, MHD, autobus
  • Komunikace:
    asfaltová
  • Energetická náročnost:
    G - Mimořádne nehospodárná
  • Nabídky v okolí:
  • Informace o obci:
    Obec Úpice má 5929 obyvatel, z toho 3949 v produktivním věku.
    V obci se nachází pošta.
    V obci se nachází škola, popř. školka.
    V obci se nachází zdravotní zařízení.
    V obci je rozvod kanalizace.
    V obci je rozvod městské vody.
    V obci je rozvod plynu.
Lokalita: Palackého , Úpice, okres Trutnov, Česká republika Palackého, Úpice, okr. Trutnov

Kontakt

Ing. Rostislav Kulička



  • Objednání prohlídky a více informací
  •  
  • Poslat na e-mail
  •  

Zasílání odkazu na realitu emailem: