• Sledovat cenu
  •  

Zasílání upozornění emailem:

Obchodní prostory 139 m2 - U Staré elektrárny, Slezská Ostrava, Ostrava, okr. Ostrava-město

Cena: 5 560 000 Kč
Stav:Volný
139 m2, cihlová
Popis: Exkluzivně Vám nabízíme ke koupi obchodní a administrativní prostory situované nedaleko centra Ostravy.

Koupě těchto prostor představuje výbornou investiční příležitost, jsou vhodné pro sídlo firmy, kanceláře, ordinace,... showroom či obchodní provoz.

Parkování je zajištěno na vlastním pozemku přímo v areálu + lze parkovat také přímo před jednotlivými obchodními jednotkami.

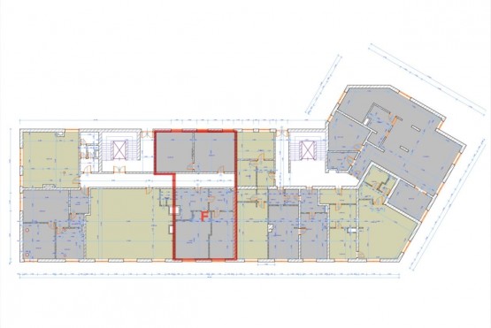
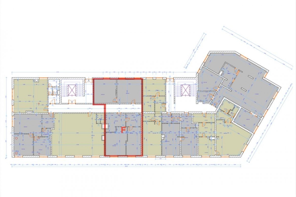
Zde se jedná o prostor pod písmenem F - 139m2.

Dispozice a výměry jednotlivých jednotek, které je možno koupit:

1. nadzemní podlaží (1. NP (první nadzemní patro)):
- jednotka A 57 m2
- jednotka B 63 m2
- jednotka C 108 m2
- jednotka D 61 m2
- jednotka E 121 m2

2. nadzemní podlaží (2. NP (druhé nadzemní patro))
- jednotka F 139 m2 (tuto nebytovou jednotku je možno změnit na bytovou jednotku)

Technický stav a vybavení:
- v celém objektu jsou hliníková okna a dveře
- kvalitní podlahové krytiny (dlažba, PVC)
- objekt je udržovaný s možností okamžitého využití
- vytápění pomocí elektrických přímotopů

Další výhody:
- výborná dostupnost do centra Ostravy
- možnost rozdělení prostor pro více nájemců
- vhodné pro kombinaci podnikání a bydlení

Cena a prohlídky:
Pro více informací či sjednání osobní prohlídky kontaktujte naši realitní makléřku, která Vám ráda poskytne veškeré podrobnosti.

Rádi Vám pomůžeme také s financováním této nemovitosti zajistíme pro Vás výhodné hypoteční nebo úvěrové podmínky a kompletní servis.

Majitel si vyhrazuje právo vybrat kupujícího na základě jím zvolených kritérií. Veškeré zveřejněné údaje obsažené v tomto inzerátu mají pouze informativní charakter a nejsou nabídkou ve smyslu § 1731 nebo § 1732 občanského zákoníku, ani se nejedná o veřejný příslib dle § 1733 občanského zákoníku.
Lokalita: U Staré elektrárny , Slezská Ostrava, Ostrava, okres Ostrava-město, Česká republika U Staré elektrárny, Slezská Ostrava, Ostrava, okr. Ostrava-město



Volná pracovní místa ExpertPrace.cz
  • Objednání prohlídky a více informací
  •  
  • Poslat na e-mail
  •  

Zasílání odkazu na realitu emailem: