• Sledovat cenu
  •  

Zasílání upozornění emailem:

Nemovitost 992 m2 - Hradčany, okr. Brno-venkov (již není v nabídce)

Cena: 6 900 000 Kč
Stav:archiv
992 m2, skeletová, parcela 2481 m2
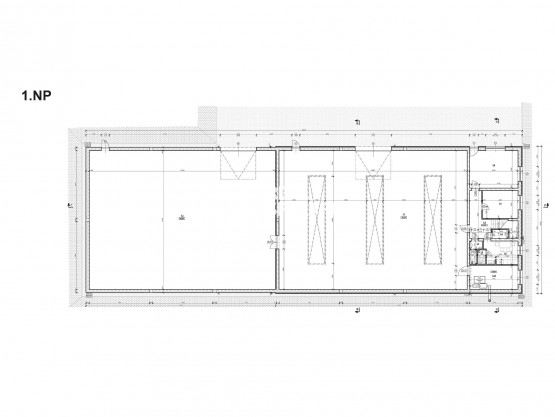
Popis: Postavte si vlastní halu na pozemku s vydaným stavebním povolením. Ve výhradním zastoupení nabízíme ke koupi (formou aukce na portále rsaukce. cz) pozemek o výměře 2481 m2 v k. ú. Hradčany u Tišnova. Pozemek se ...nachází v komerční zóně mezi obcemi Čebín a Hradčany u hlavního tahu ve směru Brno - Tišnov. Součástí prodeje bude vydané stavební povolení na podnikatelský objekt/halu pro výrobu a skladování včetně kancelářského a sociálního zázemí (celková užitná plocha 992 m2). Neplatíte provizi za zprostředkování.

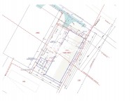
Celková výměra pozemku: 2481 m2
Pozemek je rovinatý, obdélníkového tvaru, příjezd po asfaltové komunikaci.

Součásti prodeje bude vydané stavební povolení s nabytím právní moci na:
Výrobní/skladová hala o celkové užitné ploše 992 m2 (hala 800 m2, dvoupodlažní část kanceláří a zázemí 192 m2)
Inženýrské sítě (elektřina, vodovod, jímka).

K dispozici v kanceláři RS je kompletní projektová dokumentace. K výsledné ceně v aukci bude nutno účtovat DPH dle platných předpisů.
Uvedená cena je vyvolávací. Aukce na portále rsaukce. cz je uživatelsky přívětivá a intuitivní, jsme připraveni Vám se vším pomoci.
Neváhejte kontaktovat nás kontaktovat na uvedených kontaktech.
  • Vložení inzerátu:
    12.10.2021
  • Kód:
    N/RSB/19213/21
  • K dispozici od:
    0.0.0
  • Typ nemovitosti:
    Výroba
  • Typ budovy:
    Skeletová
  • Podlahová plocha:
    992 m2
  • Plocha parcely:
    2481 m2
  • Stav objektu:
    Velmi dobrý
  • Voda:
    dálkový vodovod
  • Elektřina:
    230 V, 380 V
  • Doprava:
    vlak, silnice, autobus
  • Odpad:
    kanalizace
  • Komunikace:
    asfaltová
  • Energetická náročnost:
    G - Mimořádne nehospodárná
  • Nabídky v okolí:
  • Informace o obci:
    Obec Hradčany má 242 obyvatel, z toho 171 v produktivním věku.
    V obci je rozvod městské vody.

Podobné nabídky v okolí

Lokalita: Hradčany, okres Brno-venkov, Česká republika Hradčany, okr. Brno-venkov, Jihomoravský kraj