• Sledovat cenu
  •  

Zasílání upozornění emailem:

Nemovitost 729 m2 - K Huti, Borek, Rokycany, okr. Rokycany

Cena: 9 950 000 Kč
Stav:Volný
729 m2, cihlová
Popis: Nabízíme k prodeji kompletně připravený stavební areál v obci Borek u Rokycan, který je ideální pro spojení rodinného bydlení s podnikáním.
Soubor pozemků o celkové výměře cca 2 253 m disponuje platným stavebním povolením, ... demoličním povolením, kompletní projektovou dokumentací a všemi přípojkami tedy vše je připraveno k okamžité výstavbě.

Areál se nachází v klidné části obce, s výbornou dostupností do Rokycan i na dálnici D5.

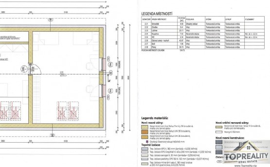
Hlavní stavba rodinný dům

Součástí prodeje je projektová dokumentace na moderní rodinný dům:

Zastavěná plocha: 174 m

Užitná plocha: 253, 8 m

Obestavěný prostor: 1 328 m

Energetické parametry: příkon 1630 kW, hlavní jistič 3×25 A

Vyřešený systém nakládání s dešťovou vodou

Dům navržen pro komfortní celoroční bydlení

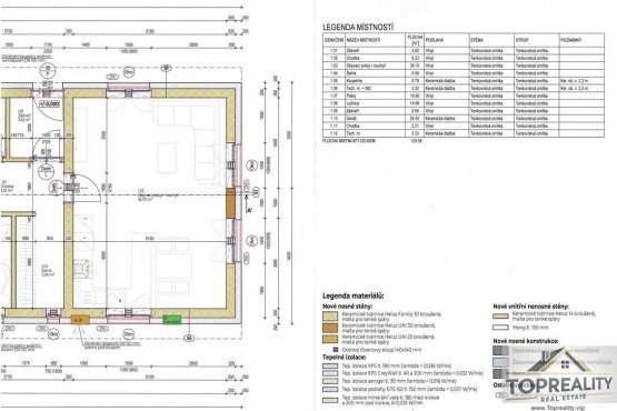
Hlavní budova pro podnikání

Areál obsahuje také projekt doplňkové stavby vhodné pro podnikání, dílnu či provozovnu:

Zastavěná plocha: 308, 5 m

Užitná plocha: 475, 87 m

Schválený příkon: 3×160 A vhodné i pro technologické provozy

Možné využití:

dílna

sklad

garáže

provozovna

servisní zázemí

Ideální kombinace bydlení a podnikání na jednom místě

Dokumentace a povolení

Areál má kompletně zajištěné veškeré podklady:

Platné stavební povolení

Platné demoliční povolení

Kompletní projektová dokumentace RD (rodinný dům) i doplňkové stavby

Hydrogeologické posouzení (vsakování srážkových vod)

Hygienické radonové měření pozemku

Vyřešené přípojky: voda, kanalizace, elektřina, možnost plynu

Možnost okamžitého zahájení stavby bez jakýchkoliv průtahů

Pozemky

Celková plocha pozemků činí cca 2 253 m:

st. 56 978 m

p. č. 78/3 921 m

p. č. 75/2 354 m

Výhody této nabídky

Naprosto kompletně připraveno na výstavbu

Velké možnosti podnikání přímo u domu

Špičkově dimenzovaná elektro přípojka 3×160 A

Všechny posudky a dokumentace hotové

Možnost okamžitého převodu

Klidná lokalita s perfektním spojením

Shrnutí

Jedinečná příležitost pro investora, rodinu i podnikatele.
Areál je připraven bez jediného kroku navíc stačí převzít a začít stavět.
  • Vložení inzerátu:
    19.11.2025
  • Kód:
    28
  • Typ nemovitosti:
    Výroba
  • Typ budovy:
    Cihlová
  • Podlahová plocha:
    729 m2
  • Elektřina:
    230 V, 380 V
  • Doprava:
    vlak, dálnice, silnice
  • Plyn:
    plynovod
  • Bezbariérový přístup:
    Ano
Lokalita: K Huti , Borek, Rokycany, okres Rokycany, Česká republika K Huti, Borek, Rokycany, okr. Rokycany

Kontakt

Objednání prohlídky a více informací



Volná pracovní místa ExpertPrace.cz
  • Objednání prohlídky a více informací
  •  
  • Poslat na e-mail
  •  

Zasílání odkazu na realitu emailem: