• Sledovat cenu
  •  

Zasílání upozornění emailem:

Nemovitost 628 m2 - Brno-jih , Brno, okr. Brno-město (již není v nabídce)

Cena: 74 170 Kč/měsíc
Stav:archiv
628 m2, cihlová
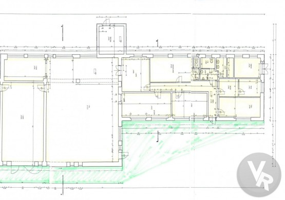
Popis: Nabízíme k pronájmu komerční areál s širokou možností využití např. prostor pro výrobu, obchod, výdejna a třídírna zásilkovny, e - shop a další, který se nachází na strategickém místě s výbornou dostupností na D1, D2 a... D52 i do samotného centra města.

Celková plocha činí 627, 8 m2 a komerční prostor se skládá ze dvou hal o velikosti 65 m2 a 172, 3 m2, čtyř skladů o velikosti 18, 6 m2, 19 m2, 10 m2 a 14 m2, čtyř kanceláří o velikosti 23, 8 m2, 20, 3 m2, 23 m2, a 16, 5 m2, chodby o velikosti 18, 6 m2, kuchyňky 6, 9 m2, šatny 7, 8 m2, sprchy 6, 3 m2 a tří samostatných toalet, které lze rozdělit na dámské a pánské o velikosti 3 m2, 1, 2 m2 a 1, 1 m2 a dále k prostoru náleží venkovní plochy o velikosti 200 m2.

Vytápění a ohřev vody je jištěn v kancelářích a skladových prostorách plynovým kondenzačním kotlem, haly jsou vytápěny plynovými robury.
Možnost zásobování a obsluha areálu kamionovou dopravou 7 dní/ 24 hodin denně.
  • Vložení inzerátu:
    21.11.2019
  • Kód:
    ZB86
  • Typ nemovitosti:
    Výroba
  • Typ budovy:
    Cihlová
  • Podlahová plocha:
    628 m2
  • Plocha parcely:
    628 m2
  • Stav objektu:
    Dobrý
  • Voda:
    dálkový vodovod
  • Doprava:
    silnice, dálnice, MHD, autobus, vlak
  • Topeni:
    lokální plynové
  • Plyn:
    plynovod
  • Odpad:
    kanalizace
  • Komunikace:
    asfaltová
  • Bezbariérový přístup:
    Ano
  • Energetická náročnost:
    G - Mimořádne nehospodárná
  • Nabídky v okolí:

Podobné nabídky v okolí

Lokalita: Brno-jih , Brno, okres Brno-město, Česká republika Brno-jih , Brno, okr. Brno-město, Jihomoravský kraj