• Sledovat cenu
  •  

Zasílání upozornění emailem:

Nemovitost 570 m2 - Brno, okr. Brno-město (již není v nabídce)

Cena: 0 Kč/měsíc
Stav:archiv
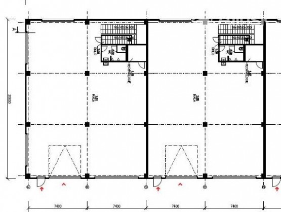
570 m2, skeletová, parcela 600 m2
Popis: Bezprovizně pro zájemce nabízím k pronájmu novostavbu nebytové, skladově výrobní, jednoty o celkové užitné ploše cca 570 m2 v průmyslové zóně v Brně. Jednotku tvoří skladově výrobní prostor v přízemí o výměře cc...a 285 m2 se vstupem sekčními vraty 3 krát 3 m v úrovni terénu, bezprašné podlahy, výška stropu 4, 7 m, vytápění plynovými zářiči, a v patře kanceláře se zázemím (kuchyňka, šatny, denní místnost, jednací místnost, archiv, atd. ) o celkové výměře cca 285 m2. K jednotce také náleží podíl na venkovní zpevněné ploše s parkováním. Veškeré bližší informace a popis standardů u makléře na základě vyplnění kontaktního formuláře s představením firmy, záměru/účelu využití a doložením bonity. Pokud jste si nevybrali z uveřejněné nabídky, zadejte nám prosím Vaši poptávku a my se pokusíme najít odpovídající nemovitost.
  • Vložení inzerátu:
    17.9.2020
  • Kód:
    BK141107-1
  • K dispozici od:
    0.0.0
  • Typ nemovitosti:
    Výroba
  • Typ budovy:
    Skeletová
  • Podlahová plocha:
    570 m2
  • Plocha parcely:
    600 m2
  • Stav objektu:
    Novostavba
  • Energetická náročnost:
    G - Mimořádne nehospodárná
  • Nabídky v okolí:
  • Informace o obci:
    Obec Brno má 371371 obyvatel, z toho 256490 v produktivním věku.
    V obci se nachází pošta.
    V obci se nachází škola, popř. školka.
    V obci se nachází zdravotní zařízení.
    V obci je rozvod kanalizace.
    V obci je rozvod městské vody.
    V obci je rozvod plynu.

Podobné nabídky v okolí

Lokalita: Brno, okres Brno-město, Česká republika Brno, okr. Brno-město, Jihomoravský kraj