• Sledovat cenu
  •  

Zasílání upozornění emailem:

Nemovitost 556 m2 - 2. května, Napajedla, okr. Zlín

Cena: 40 000 Kč/měsíc
Stav:Volný
556 m2, cihlová, parcela 2663 m2
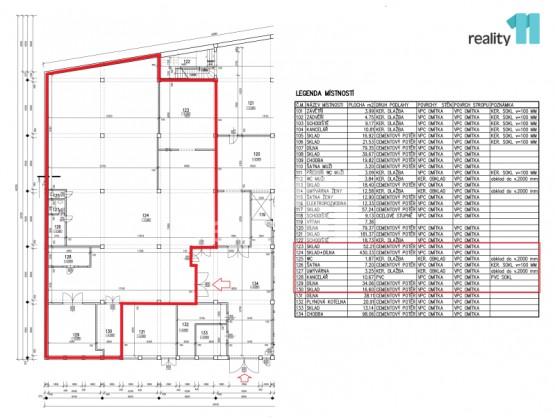
Popis: plus zálohy. Reality 11 Vám zprostředkují pronájem výrobního/skladovacího prostoru v Napajedlech na ulici 2. května. Prostory se nachází v 1. np zděného víceúčelového objektu v areálu Slávia v Napajedlech. Je zde místnost... 124 vhodná k výrobě či skladování i prostorově náročnějších dílů s vestavěnou kanceláří viz foto (430 m²), dále místnost 123 s odsáváním vzduchu vhodná např. jako lakovna. Prostory 129 a 130 aktuálně využívány jako svařovna, 125 - 128 sociální zařízení WC, sprcha, šatny a kuchyňka. Vstup přes nákladní vrata, k dispozici elektřina 220/400V. V dojezdové vzdálenosti Zlín, Otrokovice, Uherské Hradiště. Nízké vstupní náklady, více informací na uvedeném tel. čísle. Volné od léta 2026. Ev. číslo: 27995. Energetický štítek: G
  • Vložení inzerátu:
    22.1.2026
  • Kód:
    4077317
  • Typ nemovitosti:
    Výroba
  • Typ budovy:
    Cihlová
  • Zastavěná plocha:
    1468 m2
  • Podlahová plocha:
    556 m2
  • Plocha parcely:
    2663 m2
  • Stav objektu:
    Velmi dobrý
  • Umístění objektu:
    Centrum
  • Energetická náročnost:
    G - Mimořádne nehospodárná
  • Nabídky v okolí:
  • Informace o obci:
    Obec Napajedla má 7423 obyvatel, z toho 5265 v produktivním věku.
    V obci se nachází pošta.
    V obci se nachází škola, popř. školka.
    V obci se nachází zdravotní zařízení.
    V obci je rozvod kanalizace.
    V obci je rozvod městské vody.
    V obci je rozvod plynu.
Lokalita: 2. května , Napajedla, okres Zlín, Česká republika 2. května, Napajedla, okr. Zlín

Kontakt

Filip Čarnecký


Podobné nabídky v okolí


Volná pracovní místa ExpertPrace.cz
  • Objednání prohlídky a více informací
  •  
  • Poslat na e-mail
  •  

Zasílání odkazu na realitu emailem: