• Sledovat cenu
  •  

Zasílání upozornění emailem:

Nemovitost 300 m2 - Masarykovo nám., Nové Dvory, okr. Kutná hora

Cena: 22 400 Kč/měsíc
Stav:Volný
300 m2, cihlová, parcela 4869 m2
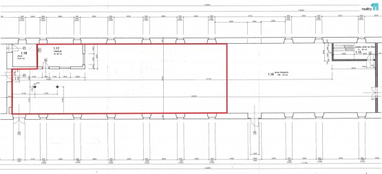
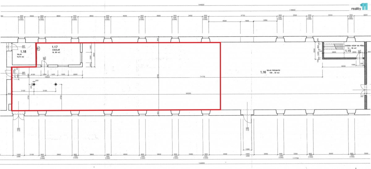
Popis: + energie. Reality 11 Vám zprostředkují pronájem komerčního či skladového prostoru o užitné ploše cca 300 m² s možností pronajmutí venkovní plochy o výměře až 2 000 m², nedaleko Kutné Hory v obci Nové Dvory.

V objektu j...e zavedena elektřina, samostatný elektroměr. V areálu momentálně funguje jeden autoservis, truhlárna a několik skladů. Vjezdová vrata na pozemek jsou dostatečně velká, projede i nákladní vozidlo. Venkovní plochu lze pronajmout za 33, - Kč za 1 m² měsíčně.

Vchodové dveře do objektu jsou široká 160 cm a výška činí 190 cm, možnost vybudovat i rampu. Prostory jsou suché a budou připravené pro nového nájemníka.

Měsíční nájemné ve výší 22. 400, - Kč + elektřina (přepis na nájemce), kauce ve výši 44. 000, - Kč. Provizi RK neplatíte. .

Volné od 1. 1. 2026.

Obec se nachází nedaleko zámku Kačina, vedle Kutné Hory. V případě prohlídky, či dalších dotazů, mě neváhejte kontaktovat. Ev. číslo: 23706. Energetický štítek: G (286 kWh/m2/rok).
  • Vložení inzerátu:
    1.10.2025
  • Kód:
    3991517
  • Typ nemovitosti:
    Výroba
  • Typ budovy:
    Cihlová
  • Zastavěná plocha:
    1797 m2
  • Podlahová plocha:
    300 m2
  • Plocha parcely:
    4869 m2
  • Stav objektu:
    Dobrý
  • Umístění objektu:
    Okraj
  • Energetická náročnost:
    G - Mimořádne nehospodárná
  • Ukazatel náročnosti:
    286 kWh/m2
  • Nabídky v okolí:
  • Informace o obci:
    Obec Nové Dvory má 842 obyvatel, z toho 592 v produktivním věku.
    V obci se nachází pošta.
    V obci se nachází škola, popř. školka.
    V obci se nachází zdravotní zařízení.
    V obci je rozvod kanalizace.
    V obci je rozvod městské vody.
    V obci je rozvod plynu.
Lokalita: Masarykovo nám. , Nové Dvory, okres Kutná hora, Česká republika Masarykovo nám., Nové Dvory, okr. Kutná hora

Kontakt

Filip Hecl


Podobné nabídky v okolí


Volná pracovní místa ExpertPrace.cz
  • Objednání prohlídky a více informací
  •  
  • Poslat na e-mail
  •  

Zasílání odkazu na realitu emailem: