• Sledovat cenu
  •  

Zasílání upozornění emailem:

Nemovitost 180 m2 - Tovární, Holešov, okr. Kroměříž

Cena: 110 Kč/m2/měsíc
Stav:Volný
180 m2, cihlová
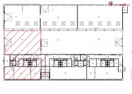
Popis: Pronájem výrobních a skladových prostor v Holešově | až 1 663 m² | možnost dělení od 180 m² | k dispozici od 01/2027

Nabízíme k pronájmu výrobní a skladové prostory v areálu společnosti Trachea Wood, a. s. , na adrese Tová...rní 1209 v Holešově. Jedná se o halu č. 84 s celkovou volnou plochou až 1 663 m², která je vhodná pro výrobu, montáž, skladování, lehký průmysl i kombinovaný provoz se zázemím. Celková výměra zahrnuje přibližně 1 205 m² výrobních ploch a 458 m² zázemí. Prostory je možné pronajmout i po menších částech, a to již od cca 180 m².

Velkou výhodou této nabídky je variabilita využití i dobrá dopravní dostupnost. Objekt se nachází v průmyslové části města Holešov, přibližně 4 km od nájezdu na dálnici a zhruba 1 km od vlakového nádraží. Areál je dobře dostupný jak pro zaměstnance, tak pro zásobování a logistiku. Zásobování kamionovou dopravou je možné.

Hala disponuje technickým zázemím pro široké provozní využití. Přívod elektrické energie do budovy je řešen s hlavním vstupním jištěním 615 A, přičemž jednotlivé oddíly mají samostatné rozvaděče s výkonem přibližně 200 A. Ve výrobních prostorách je instalováno odsávání Cipres filtr s maximálním výkonem až 45 000 m³/hod. Objekt je napojen na základní inženýrské sítě a disponuje odpovídajícím zázemím pro provoz firmy. Světlá výška haly je cca 4, 5 m. Orientační rozměr vrat je cca 4, 0 × 4, 2 m a orientační nosnost podlah cca 1 000 kg/m². Přesné technické údaje budou na vyžádání doplněny.

V bezprostředním okolí budovy se nachází zpevněné manipulační plochy a k dispozici je také parkování přímo u objektu. Prostory tak mohou vyhovovat jak firmám hledajícím samostatné výrobní zázemí, tak i společnostem, které potřebují kombinaci výroby, skladu a administrativního nebo provozního zázemí.

Prostory budou k dispozici od ledna 2027. Již nyní je však možné jednat o konkrétní podobě pronájmu, rozsahu využití i technických požadavcích budoucího nájemce.

V případě zájmu Vám rádi připravíme konkrétní variantu pronájmu dle požadované výměry a způsobu využití a domluvíme osobní prohlídku přímo na místě.

Nájemné: 110 Kč / m² / měsíc + energie + DPH Ev. číslo: 655997. Energetický štítek: C
  • Vložení inzerátu:
    22.4.2026
  • Kód:
    4220023
  • Typ nemovitosti:
    Výroba
  • Typ budovy:
    Cihlová
  • Podlahová plocha:
    180 m2
  • Stav objektu:
    Velmi dobrý
  • Energetická náročnost:
    C - Úsporná
  • Nabídky v okolí:
  • Informace o obci:
    Obec Holešov má 12149 obyvatel, z toho 8416 v produktivním věku.
    V obci se nachází pošta.
    V obci se nachází škola, popř. školka.
    V obci se nachází zdravotní zařízení.
    V obci je rozvod kanalizace.
    V obci je rozvod městské vody.
    V obci je rozvod plynu.
Lokalita: Tovární , Holešov, okres Kroměříž, Česká republika Tovární, Holešov, okr. Kroměříž

Kontakt

Radek Pobuda


Podobné nabídky v okolí


Volná pracovní místa ExpertPrace.cz
  • Objednání prohlídky a více informací
  •  
  • Poslat na e-mail
  •  

Zasílání odkazu na realitu emailem: