• Sledovat cenu
  •  

Zasílání upozornění emailem:

Komerční objekt 915 m2 - Josefská, Brno, okr. Brno-město

Cena: 73 000 000 Kč
Stav:Volný
915 m2, cihlová, parcela 358 m2
Popis: Na základě výhradního zastoupení majitele Vám nabízíme k prodeji obchodní centrum Josefínka v samém centru Brna na nároží ulic Josefská 8, 10 a Františkánská 10. Jedná se o polyfunkční budovu s obchodními a kancelářskými pr...ostory, které jsou dlouhodobě obsazené nájemníky.

Výměra pozemku: 358 m2, zastavěná plocha 357, 2 m2
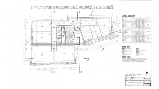
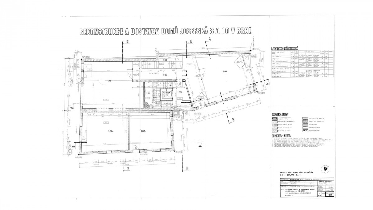
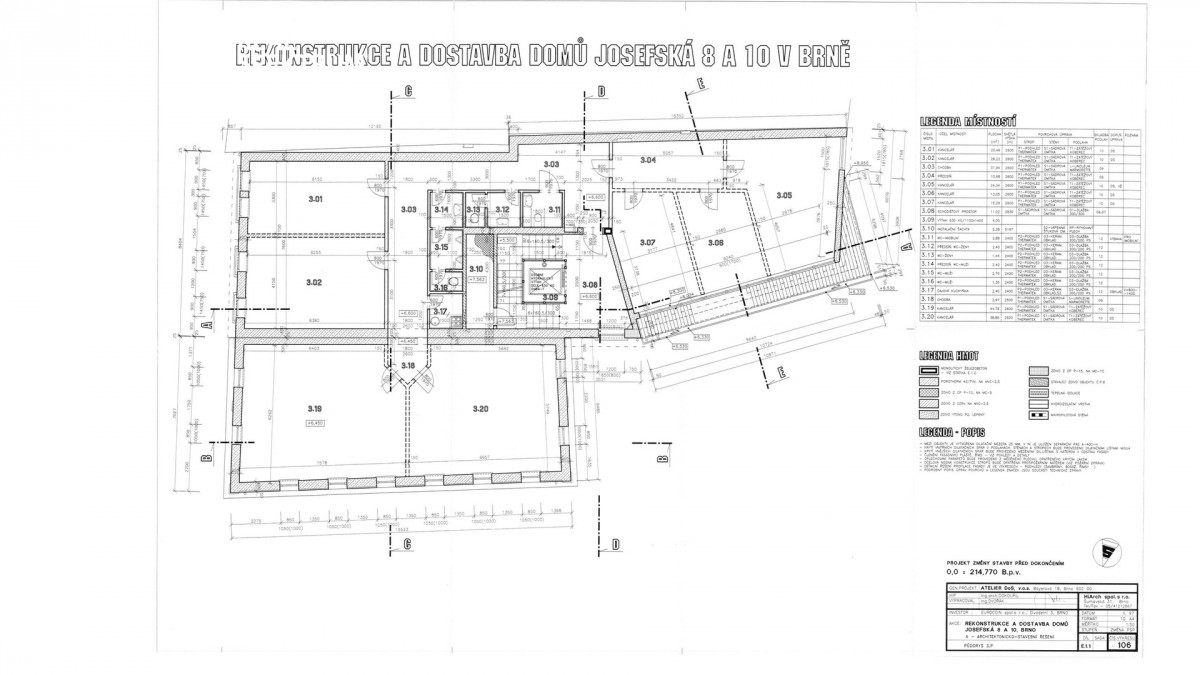
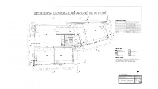
Celková užitná plocha: 1 315, 16 m2
Plocha k pronájmu: 915, 4 m2

Nemovitost má celkem čtyři nadzemní a jedno podzemní podlaží. Obchodní a kancelářské prostory jsou dlouhodobě pronajímány.

1. PP – plocha podlaží celkem: 268, 14 m2
- volný prostor – 44 m2

1. NP (první nadzemní patro) – plocha podlaží celkem: 283, 92 m2
pronajatá plocha:
- prodejna gramofonových desek – propojeno s 1. PP – celková výměra 117, 4 m2
- zlatnictví – 46, 5 m2
- punčochové zboží – 70, 79 m2
- aktuálně pronajímaný prostor – (dříve bar) – 41 m2

2. NP (druhé nadzemní patro) – plocha podlaží celkem: 285, 58 m2
pronajatá plocha:
- outdoorové oblečení – 80 m2
- advokátní kancelář – 143, 9 m2

3. NP (třetí nadzemní patro) – plocha podlaží celkem: 265, 86 m2
pronajatá plocha:
- nezisková organizace – 124, 52 m2
- správcovská spol. – 20, 46 m2
- jazyková škola – 71 m2

4. NP (čtvrté nadzemní patro) – plocha podlaží celkem: 211, 66 m2 bez půdního prostoru
pronajatá plocha:
- jazyková škola – 131, 85 m2

Každá z pronajatých jednotek má své měření elektrické energie. Vytápění je řešeno centrálními plynovými kotly, které jsou umístěné ve 4. NP (čtvrté nadzemní patro).
PENB skupiny C

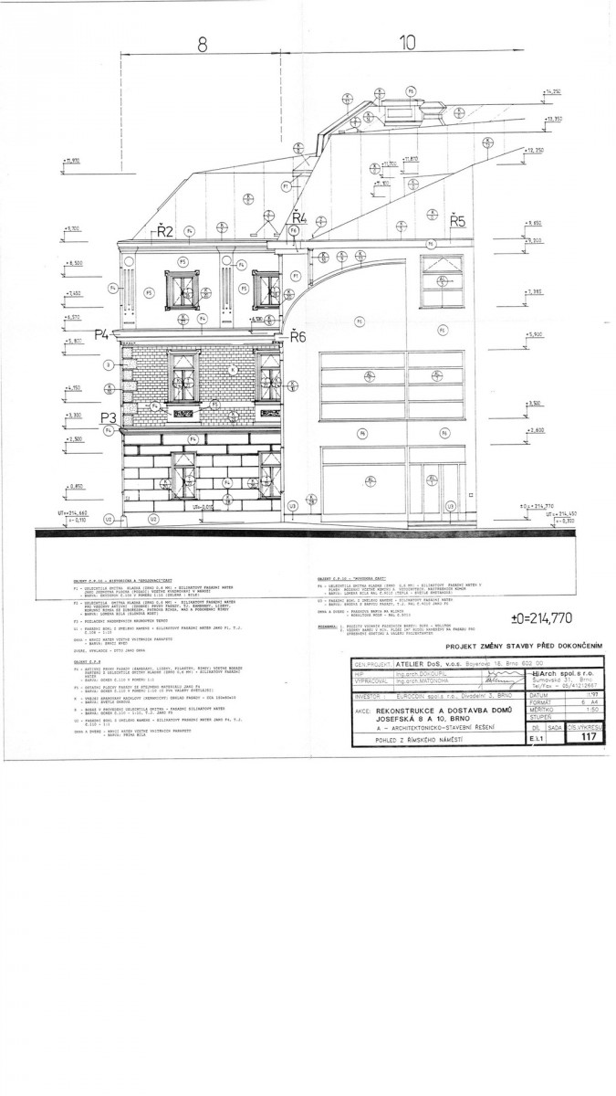
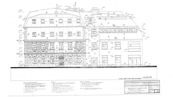
Dnešní obchodní centrum vzniklo sloučením dvou řadových domů Josefská 8 a Josefská 10. Dům Josefská 8 byl drobná stavba s klasicistním jádrem a secesní pozdně historizující fasádou z přelomu 19. a 20. století. Dům Josefská 10 s klasicistním průčelím obytného domu s obchodně řemeslnickým přízemím byl předmětem památkové ochrany. Oba domy byly v roce 1996 asanovány a znovu vystaveny včetně dostavby do Římského náměstí. Jejich výsledná podoba byla navržena tak, aby odpovídala regulačním podmínkám dostavby Římského náměstí. Průčelí do ulice Josefské bylo navrženo v zásadě jako replika historické klasicistní fasády, zatímco zadní strana objektu směřující na Římské náměstí kombinuje původní zastavění se soudobými architektonickými prvky. 10 v současnosti tvoří dispozičně a provozně jeden celek využívaný pro obchodní a kancelářské účely, obchodní podlaží jsou v rámci stavby propojena výtahem.

Bližší informace Vám rád poskytnu osobně v naší realitní kanceláři či na zavolání.
  • Vložení inzerátu:
    31.10.2025
  • Kód:
    N/RSB/21374/25
  • K dispozici od:
    0.0.0
  • Typ nemovitosti:
    Ostatní
  • Typ budovy:
    Cihlová
  • Zastavěná plocha:
    357 m2
  • Podlahová plocha:
    915 m2
  • Plocha parcely:
    358 m2
  • Stav objektu:
    Dobrý
  • Umístění objektu:
    Centrum
  • Energetická náročnost:
    C - Úsporná
  • Podle vyhlášky:
    c. 148/2007 Sb
  • Ukazatel náročnosti:
    121 kWh/m2
  • Nabídky v okolí:
  • Informace o obci:
    Obec Brno má 371371 obyvatel, z toho 256490 v produktivním věku.
    V obci se nachází pošta.
    V obci se nachází škola, popř. školka.
    V obci se nachází zdravotní zařízení.
    V obci je rozvod kanalizace.
    V obci je rozvod městské vody.
    V obci je rozvod plynu.
Lokalita: Josefská , Brno, okres Brno-město, Česká republika Josefská, Brno, okr. Brno-město

Kontakt

Jan Ryšavý



Volná pracovní místa ExpertPrace.cz
  • Objednání prohlídky a více informací
  •  
  • Poslat na e-mail
  •  

Zasílání odkazu na realitu emailem: