Komerční objekt 53 m2 - U Staré elektrárny 1881, Slezská Ostrava, Ostrava, okr. Ostrava-město
Cena:
2 799 000 Kč
Stav:Volný
53 m2, cihlová
Popis:
Exkluzivně Vám nabízíme ke koupi obchodní a administrativní prostory situované nedaleko centra Ostravy.
Koupě těchto prostor představuje výbornou investiční příležitost, jsou vhodné pro sídlo firmy, kanceláře, ordinace,... showroom či obchodní provoz.
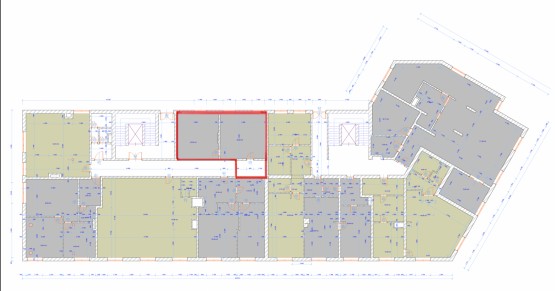
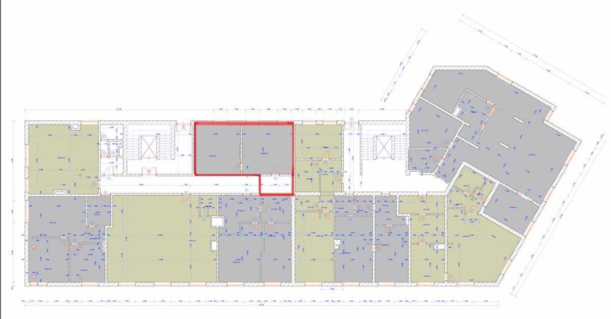
Zde se jedná o prostor pod písmenem G - 53 m2.
Dispozice a výměry jednotlivých jednotek, které je možno koupit:
1. nadzemní podlaží (1. NP (první nadzemní patro)):
- jednotka A 57 m2
- jednotka B 63 m2
- jednotka C 108 m2
- jednotka D 61 m2
- jednotka E 121 m2
2. nadzemní podlaží (2. NP (druhé nadzemní patro))
- jednotka F 70 m2 (tuto nebytovou jednotku je možno změnit na bytovou jednotku)
- jednotka G 53 m2
Technický stav a vybavení:
- v celém objektu jsou hliníková okna a dveře
- podlahové krytiny (dlažba, PVC)
- objekt je udržovaný s možností okamžitého využití
- vytápění pomocí elektrických přímotopů
Další výhody:
- výborná dostupnost do centra Ostravy
- možnost rozdělení prostor pro více nájemců
Cena a prohlídky:
Pro více informací či sjednání osobní prohlídky kontaktujte naši realitní makléřku, která Vám ráda poskytne veškeré podrobnosti.
Rádi Vám pomůžeme také s financováním této nemovitosti zajistíme pro Vás výhodné hypoteční nebo úvěrové podmínky a kompletní servis.
Majitel si vyhrazuje právo vybrat kupujícího na základě jím zvolených kritérií. Veškeré zveřejněné údaje obsažené v tomto inzerátu mají pouze informativní charakter a nejsou nabídkou ve smyslu § 1731 nebo § 1732 občanského zákoníku, ani se nejedná o veřejný příslib dle § 1733 občanského zákoníku.
- Vložení inzerátu:
2.4.2026
- Kód:
307
- Typ nemovitosti:
Ostatní
- Typ budovy:
Cihlová
- Podlahová plocha:
53 m2
- Stav objektu:
Velmi dobrý
- Telekomunikace:
Internet
- Voda:
dálkový vodovod
- Elektřina:
230 V
- Doprava:
silnice, MHD, autobus
- Odpad:
kanalizace
- Bezbariérový přístup:
Ano
- Energetická náročnost:
B - Velmi úsporná
- Nabídky v okolí: