• Sledovat cenu
  •  

Zasílání upozornění emailem:

Komerční objekt 45 m2 - nám. Soukenné, Liberec

Cena: 28 975 Kč/měsíc
Stav:Volný
45 m2
Popis: Hledáte prostory pro ordinaci v centru Liberce a současně chcete nabídnout svým pacientům nadstandardní prostředí?
Právě pro vám je určena tato nabídka:

Zprostředkuji pronájem nově vybudované ordinace na velice zajímavém mí...stě - uprostřed obchodního centra FÓRUM Liberec.
Jedná se o unikátní příležitost spojit výhody centra krajského města a zároveň zajistit absolutní soukromí a péči.

V nabídce jsou prostor ve stavu shell&core, která je součástí samostatného, nově vznikajícího lékařského prostoru.

Hledáme takovou specializaci, která v ideálním případě bude kooperovat s ortopedickou ordinací, která je již v provozu.
Podmínkou to však není, nicméně je důležité, aby provoz ordinace nijak nerušil ostatní lékaře.
Zároveň je třeba hledět na omezenou kapacitu v čekárně - prostory tak nebudou vhodné pro např. praktického lékaře s velkým počtem pacientů.

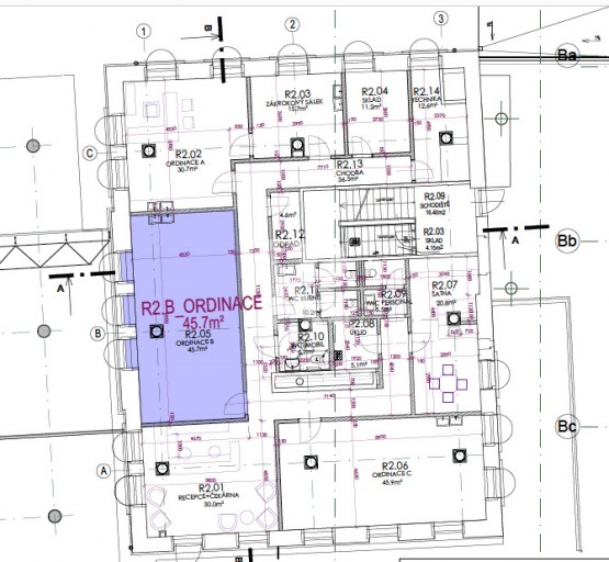
Ordinace 45, 9m2 je zcela samostatná (viz. půdorys), avšak bude mít společnou čekárnu, recepci, sociální zázemí pro pacienty i denní místnost pro personál. Předpokladem je, že recepční bude sdílena lékaři, tak aby byl zajištěný absolutní servis pro pacienty.

Nájemné bude odvozeno od stavu nemovitosti, který bude nájemník přebírat.
V první variantě - aktuální stav (shell&core s přípravou na všechny inženýrské sítě) a současně podíl na společných prostorách,
nájemné včetně služeb činí 28. 975Kč + DPH. Dále si nájemník bude platit vlastní spotřeby energií.
Druhá varianta - nájemník bude chtít převzít ordinaci připravenou k nastěhování (vybudování zajistí majitel) - nájemné bude navýšeno o náklady.

Provizi realitní kanceláři nájemník neplatí, odměnu máme domluvenu s majitelem.

Neváhejte a domluvte si termín prohlídky, kde vám rádi poskytneme více informací.
  • Vložení inzerátu:
    17.1.2024
  • Kód:
    0140
  • K dispozici od:
    0.0.0
  • Typ nemovitosti:
    Ostatní
  • Podlaží:
    2
  • Zastavěná plocha:
    45 m2
  • Podlahová plocha:
    45 m2
  • Stav objektu:
    Velmi dobrý
  • Rok výstavby:
    2009
  • Rok kolaudace:
    2009
  • Plyn:
    plynovod
  • Odpad:
    kanalizace
  • Energetická náročnost:
    G - Mimořádne nehospodárná
  • Nabídky v okolí:
  • Informace o obci:
    Obec Liberec má 101865 obyvatel, z toho 71331 v produktivním věku.
    V obci se nachází pošta.
    V obci se nachází škola, popř. školka.
    V obci se nachází zdravotní zařízení.
    V obci je rozvod kanalizace.
    V obci je rozvod městské vody.
    V obci je rozvod plynu.
Lokalita: nám. Soukenné , Liberec, okres Liberec, Česká republika nám. Soukenné, Liberec

Kontakt

Michal Řehoř



Volná pracovní místa ExpertPrace.cz
  • Objednání prohlídky a více informací
  •  
  • Poslat na e-mail
  •  

Zasílání odkazu na realitu emailem: