• Sledovat cenu
  •  

Zasílání upozornění emailem:

Komerční objekt 448 m2 - Na Zlíchově, Praha 5, Praha (již není v nabídce)

Cena: 24 990 000 Kč
Stav:archiv
448 m2, cihlová
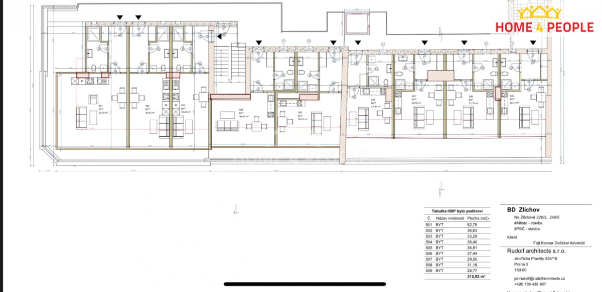
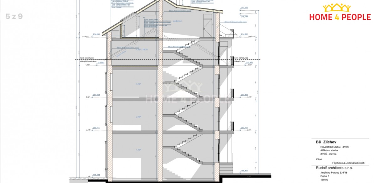
Popis: cena včetně provize a právního servisu. prodej půdního prostoru o celkové výměře 448, 2 m², nacházející se na Praze 5 - Hlubočepy, v cihlovém domě v ulici Na Zlíchově 226/3 a 240/5.

Dle studie má v domě vzniknout nástav...ba s 19 malometrážními bytovými jednotkami, kdy HPP obou pater je 948 m², čistá prodejní plocha těchto bytů je 700 m². Projekt na půdní nástavbu byl již v rámci SP podán na jednotlivé DOSSY.
Půda se nachází v žádané lokalitě na Praze 5 - Hlubočepy. U domu je hned zastávka tramvaje č. 4, 5, 12, 20, která vás za 2 minuty přiveze na metro Smíchov. V okolí veškerá občanská vybavenost, školy, školky, obchody. V případě zájmu o prohlídku nebo bližší informace, jsem Vám k dispozici.

Nemovitost je možné financovat hypotékou, kterou Vám rádi zařídíme, doporučuji prohlídku. Ev. číslo: 30536. Energetický štítek: G

Podobné nabídky v okolí

Lokalita: Na Zlíchově , Praha 5, Praha, Česká republika Na Zlíchově, Praha 5, Praha