• Sledovat cenu
  •  

Zasílání upozornění emailem:

Komerční objekt 437 m2 - Bělotín , okr. Přerov

Cena: 6 350 000 Kč
Stav:Volný
437 m2, parcela 770 m2
Popis: Jedinečná investiční příležitost – Komerční i obytná nemovitost v Bělotíně.

Hledáte kombinaci komerčních prostor a rodinného bydlení v jednom?
Tato multifunkční nemovitost v klidné obci Bělotín (okres Přerov) Vám nabízí šir...oké možnosti využití – podnikání, skladování, sídlo firmy i pohodlné bydlení na jednom místě.

Lokalita:
Vynikající dopravní dostupnost: dálnice D1 do 5 minut autem, Přerov 28 km, Olomouc 38 km, Ostrava 57 km.
Veškerá občanská vybavenost v dosahu: ZŠ, MŠ, pošta, obecní úřad, vlak, autobus – vše do 12 minut chůze

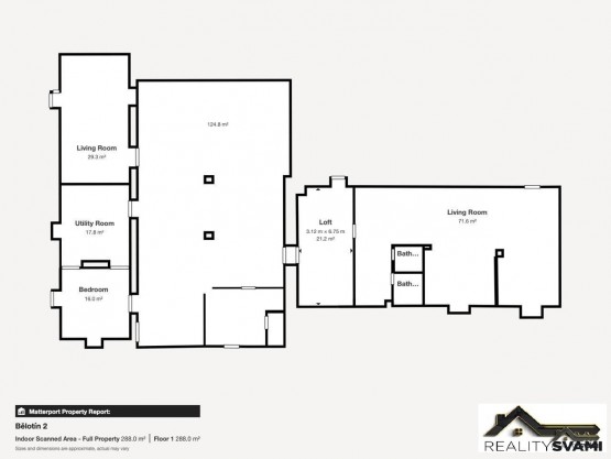
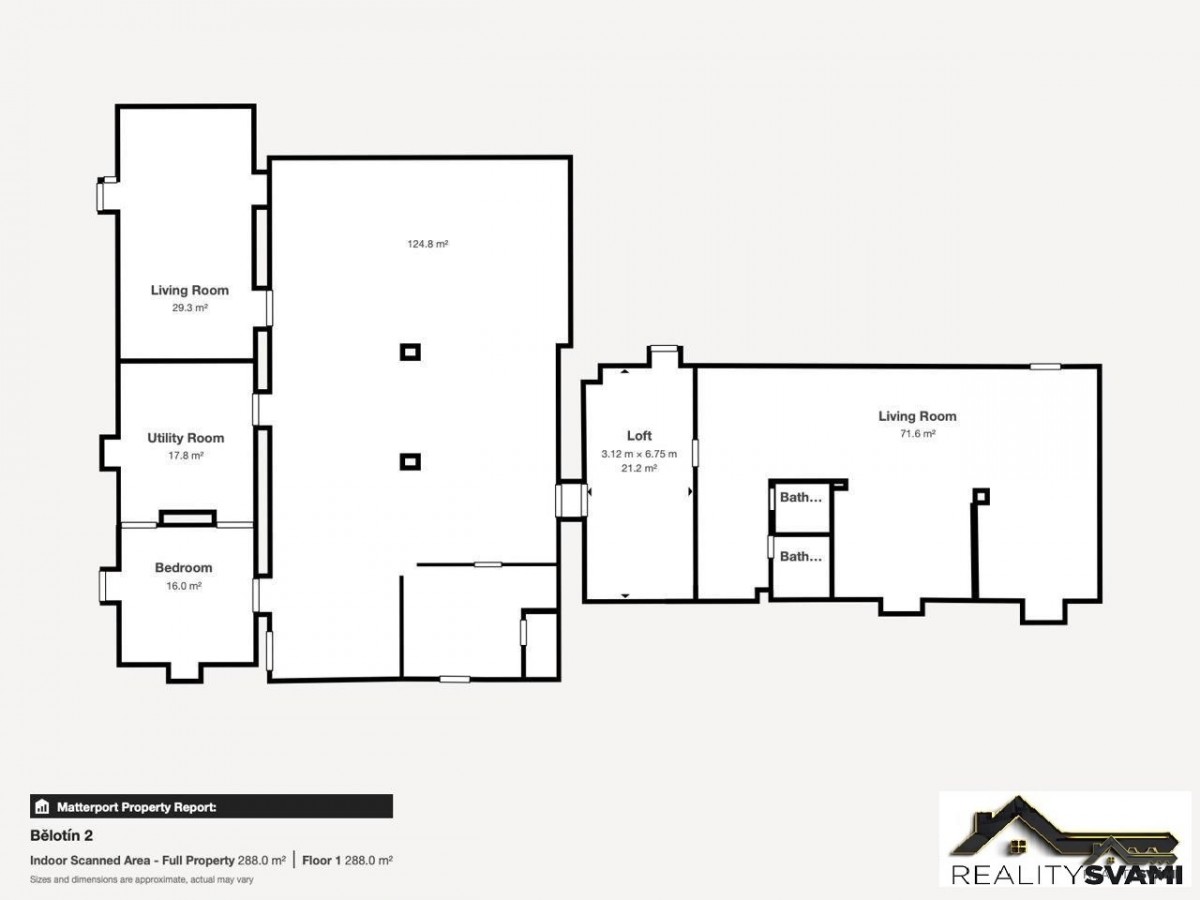
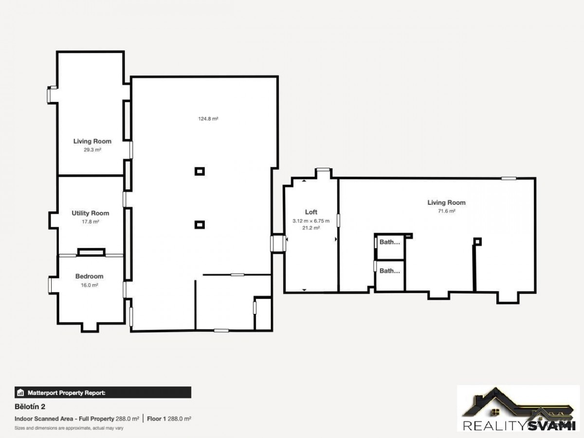
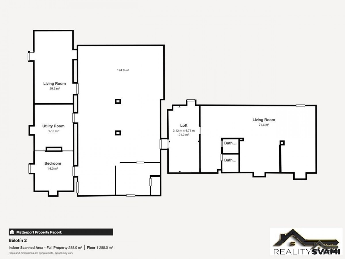
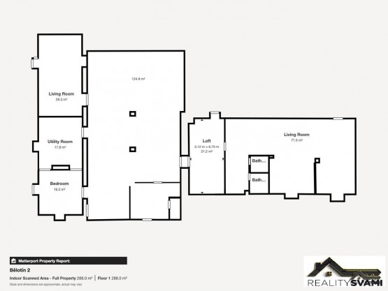
Dispozice nemovitosti:
Přízemí – komerční prostory (288 m²)
Velkorysá hala s možností dispozičních úprav (vstup dveřmi nebo el. vraty)
Oddělené místnosti: sklady, kanceláře, čekárna, šatny, technické zázemí
Navazující část: bar, krbová kamna, posezení, 2 krát sociální zařízení WC – vhodné pro kavárnu, vinárnu, kadeřnictví, masáže, wellness, jednací místnost apod.
Přístup na zahradu (možnost letní/zimní zahrádky, hřiště, bazénu, parkování, altánu)

Voda, elektřina, sociální zařízení WC, příprava na topení
Parkování pro dodávky i více vozidel, rozměr vrat šířka 2, 997m, výška 4, 904m, zaparkujete zde i dlouhý přívěs.
Vhodné pro autoservis, výrobu, sklady, autodopravu

2. nadzemní podlaží – bytová jednotka 5+1 (149 m²)
- Samostatný vstup venkovním schodištěm
- Velká kuchyně s technickým prostorem a přístupem na střechu
- Obývací pokoj s krbovými kamny
- 2 pokoje, koupelna s vanou i sprchou, 2 sociální zařízení WC
- Ložnice s lodžií

Technické informace:
Elektřina, vodovod, vlastní studna
Kanalizace: septik s trativodem (obecní kanalizace plánována – cca 50 m)
Plyn zaveden (nevyužíván)
Topení: krbová kamna na dřevo

- Možnost čerpání dotací (např. NZÚ)
- Potenciál pro solární panely či větrnou elektrárnu
- Nízké měsíční náklady

Stav a možnosti:
- Dům po rozsáhlé rekonstrukci – kolaudace 09/2023
- Probíhají dokončovací práce a úpravy pozemku
- Výborná investiční příležitost (možnost pronájmu komerčních prostor a bytové jednotky 5+1)

Neváhejte mě kontaktovat pro více informací nebo domluvení prohlídky.
S financováním, dotacemi i dokončovacími pracemi Vám rád pomohu.

Těším se na osobní setkání.
  • Vložení inzerátu:
    8.11.2025
  • Kód:
    00504
  • K dispozici od:
    0.0.0
  • Typ nemovitosti:
    Ostatní
  • Zastavěná plocha:
    342 m2
  • Podlahová plocha:
    437 m2
  • Plocha parcely:
    770 m2
  • Stav objektu:
    Před rekonstrukcí
  • Rok výstavby:
    2023
  • Rok kolaudace:
    2023
  • Rok rekonstrukce:
    2022
  • Umístění objektu:
    Klidná část
  • Telekomunikace:
    Internet, Kabelové rozvody
  • Voda:
    dálkový vodovod
  • Elektřina:
    230 V, 380 V
  • Doprava:
    silnice, dálnice, MHD, autobus, vlak
  • Plyn:
    plynovod
  • Odpad:
    kanalizace
  • Komunikace:
    asfaltová
  • Energetická náročnost:
    G - Mimořádne nehospodárná
  • Nabídky v okolí:
  • Informace o obci:
    Obec Bělotín má 1779 obyvatel, z toho 1246 v produktivním věku.
    V obci se nachází pošta.
    V obci se nachází škola, popř. školka.
    V obci se nachází zdravotní zařízení.
    V obci je rozvod kanalizace.
    V obci je rozvod městské vody.
    V obci je rozvod plynu.
Lokalita: Bělotín , okres Přerov, Česká republika Bělotín , okr. Přerov, Olomoucký kraj

Kontakt

František Bula



  • Objednání prohlídky a více informací
  •  
  • Poslat na e-mail
  •  

Zasílání odkazu na realitu emailem: