• Sledovat cenu
  •  

Zasílání upozornění emailem:

Komerční objekt 40 m2 - Na rolích, Praha 4, Praha

Cena: 15 000 Kč/měsíc
Stav:Volný
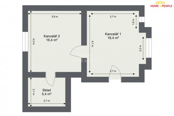
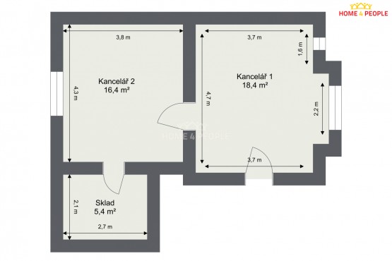
40 m2, cihlová
Popis: elektřina, plyn, voda cca 5. 000, - Kč/měsíc + provize RK. Zprostředkujeme Vám ve výhradním zastoupení majitele pronájem komerčního prostoru o celkové výměře 40 m² vhodný pro kancelář, sklad, výdejnu, provozovnu, kosm...etický salón - může zařídit úpravu dle dohody. Dvě místnosti s oknem do zahrady včetně sociálního zařízení. Prostor se nachází v klidné a příjemné lokalitě Praha - Michle. Možnost parkování. V blízkosti domu je výborná skvělá dopravní dostupnost do centra Prahy pouhých 5min a jste na metru Budějovická. Pro více informací neváhejte kontaktovat makléře. Volný je ihned. Prohlídky po telefonické domluvě. Těším se na naše společné setkání při prohlídce. Ev. číslo: 31951. Energetický štítek: F (1 kWh/m2/rok).
Lokalita: Na rolích , Praha 4, Praha, Česká republika Na rolích, Praha 4, Praha

Kontakt

Martina Novotná (Voslářová)
Objednání prohlídky a více informací


Podobné nabídky v okolí


Volná pracovní místa ExpertPrace.cz
  • Objednání prohlídky a více informací
  •  
  • Poslat na e-mail
  •  

Zasílání odkazu na realitu emailem: