• Sledovat cenu
  •  

Zasílání upozornění emailem:

Komerční objekt 378 m2 - Havlíčkova 342, Vyškov

Cena: 13 500 000 Kč
Stav:Volný
378 m2, cihlová, parcela 602 m2
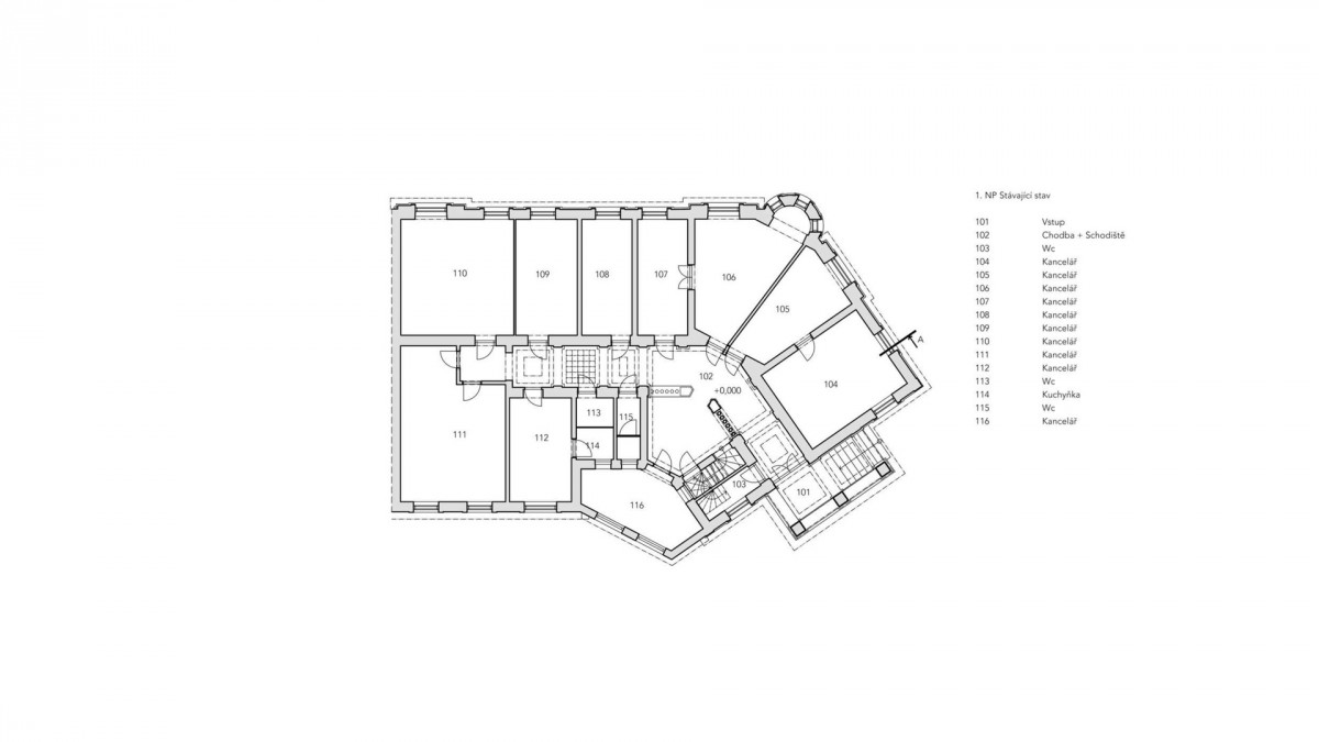
Popis: Dovoluji si Vám nabídnout vyškovský skvost mezi nemovitostmi - Skřivánkovu vilu postavenou v letech 1903 – 1904. JUDr. Václav Skřivánek byl nejen starostou města Vyškova, ale také významným komunálním politikem. V 70. ... letech minulého století byla nemovitost adaptována na administrativní budovu a využívána OPBH. Poslední desetiletí nemovitost chátrá a je určena k rekonstrukci. Současný vlastník má zpracovánu kompletní studii včetně projektové dokumentace přestavby na bytový dům o 6 jednotkách. Již je získáno kladné stanovisko OÚPRu.

Plocha pozemku: 602 m2, z toho zastavěná plocha 338 m2
Budoucí užitná plocha bytových jednotek: 378 m2
Počet parkovacích stání: 6 krát

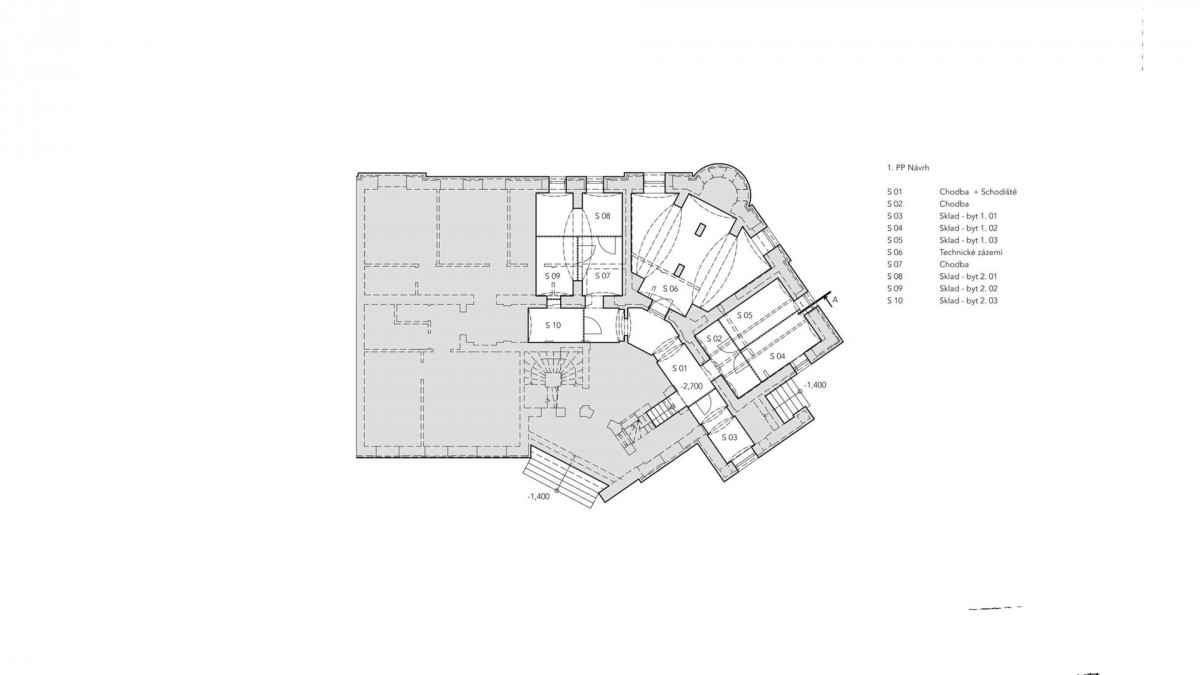
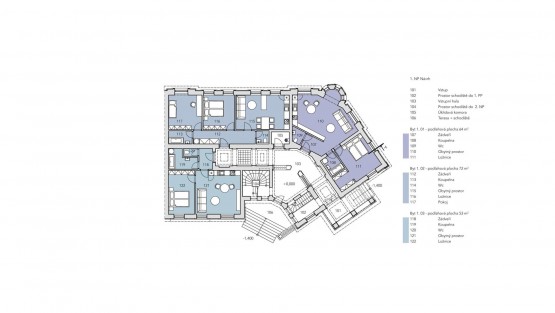
1. NP (první nadzemní patro) – navrženy 3 bytové jednotky
- byt 1. 01 – 2+kk – 64 m2
- byt 1. 02 – 3+kk – 72 m2
- byt 1. 03 – 2+kk – 53 m2

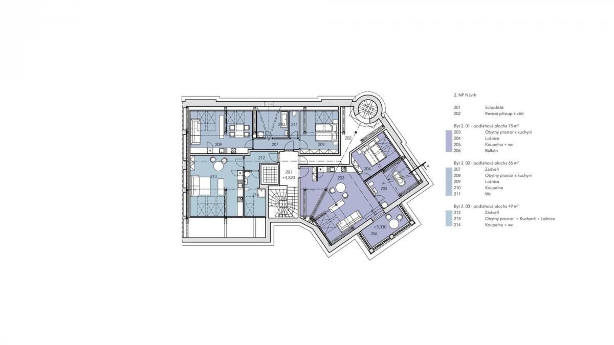
2. NP (druhé nadzemní patro) – navrženy 3 bytové jednotky
- byt 2. 01 – 2+kk + balkon – 75 m2
- byt 2. 02 – 2+kk – 65 m2
- byt 2. 03 – 1+kk – 49 m2

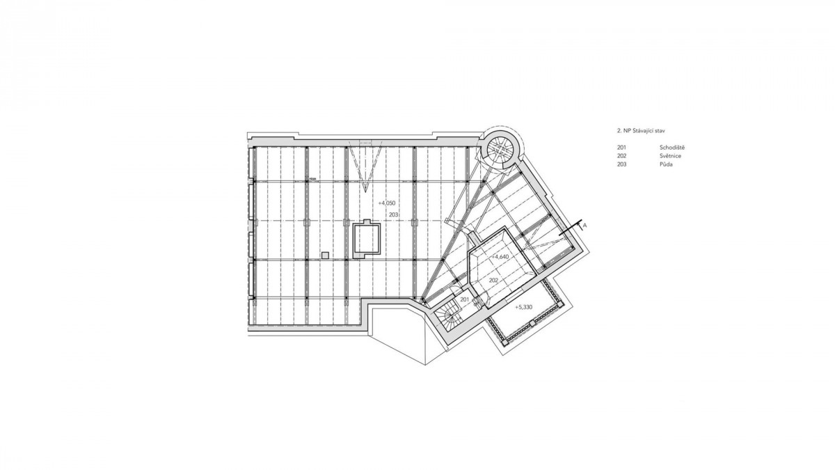
1. PP
- prostory pro technické zázemí objektu, bude zde umístěna technologie pro vytápění a ohřev

Záměrem je kompletní rekonstrukce při znovuobnově a zachování původních architektonických hodnost stavby a doplnění o nové prvky tak, aby bylo možné 121 let starý dům využívat v rámci nynějších standardů.

Bližší informace k nemovitosti včetně projektové dokumentace rád sdělím osobně v naší realitní kanceláři.
  • Vložení inzerátu:
    20.10.2025
  • Kód:
    N/RSB/21370/25
  • K dispozici od:
    0.0.0
  • Typ nemovitosti:
    Ostatní
  • Typ budovy:
    Cihlová
  • Podlahová plocha:
    378 m2
  • Plocha parcely:
    602 m2
  • Stav objektu:
    Před rekonstrukcí
  • Rok výstavby:
    1904
  • Rok kolaudace:
    1904
  • Nabídky v okolí:
  • Informace o obci:
    Obec Vyškov má 505 obyvatel, z toho 350 v produktivním věku.
    V obci se nachází zdravotní zařízení.
    V obci je rozvod kanalizace.
    V obci je rozvod městské vody.
Lokalita: Havlíčkova 342, Vyškov, okres Vyškov, Česká republika Havlíčkova 342, Vyškov

Kontakt

Jan Ryšavý


Podobné nabídky v okolí


Volná pracovní místa ExpertPrace.cz
  • Objednání prohlídky a více informací
  •  
  • Poslat na e-mail
  •  

Zasílání odkazu na realitu emailem: