• Sledovat cenu
  •  

Zasílání upozornění emailem:

Komerční objekt 355 m2 - Červená Voda , okr. Ústí nad Orlicí (již není v nabídce)

Cena: 4 500 000 Kč
Stav:archiv
355 m2, cihlová, parcela 957 m2
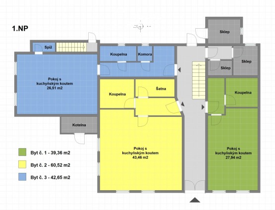
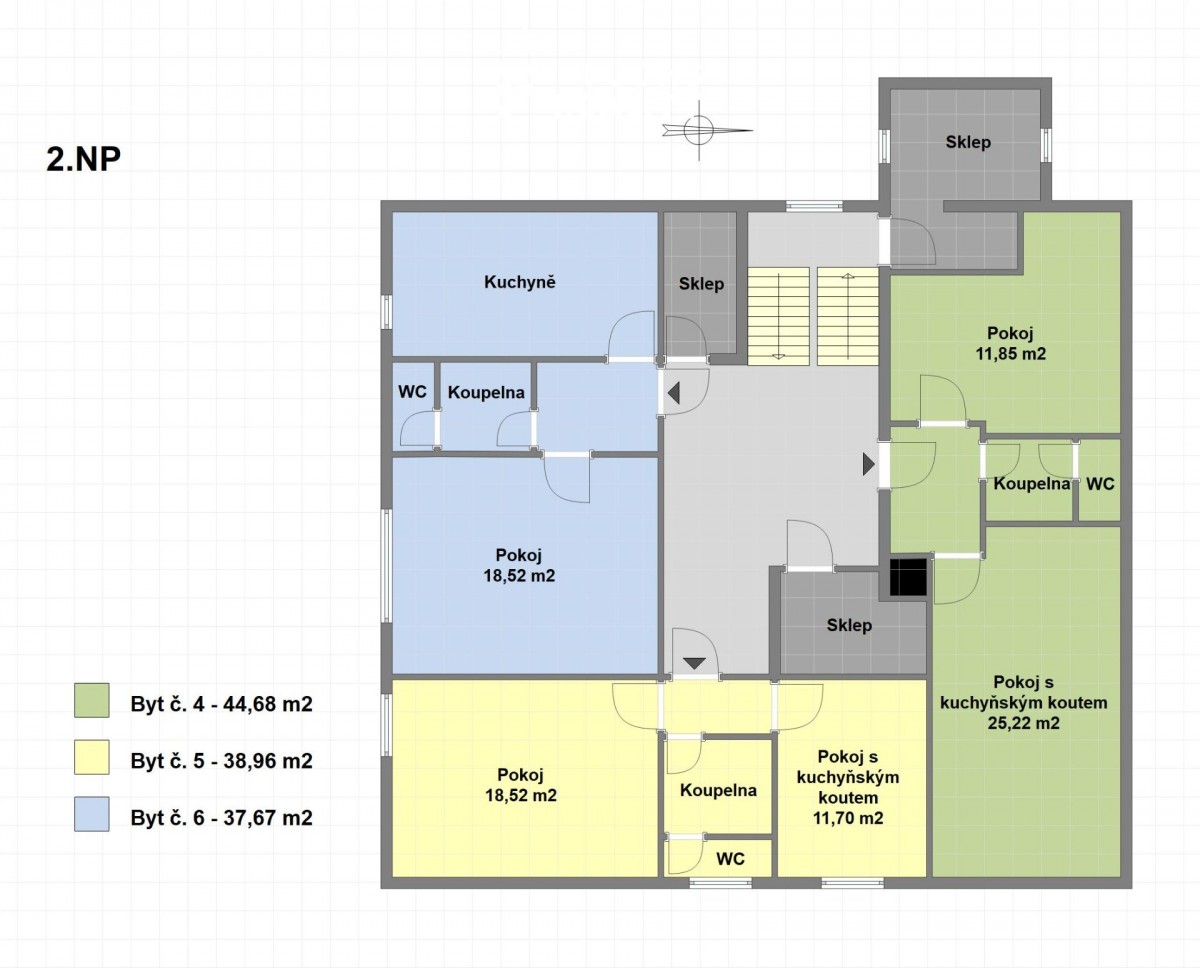
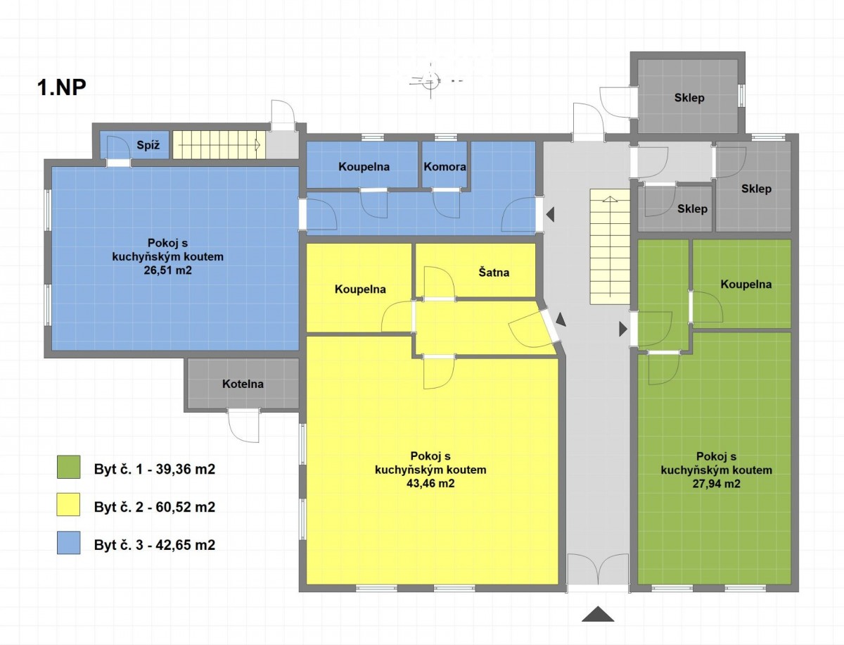
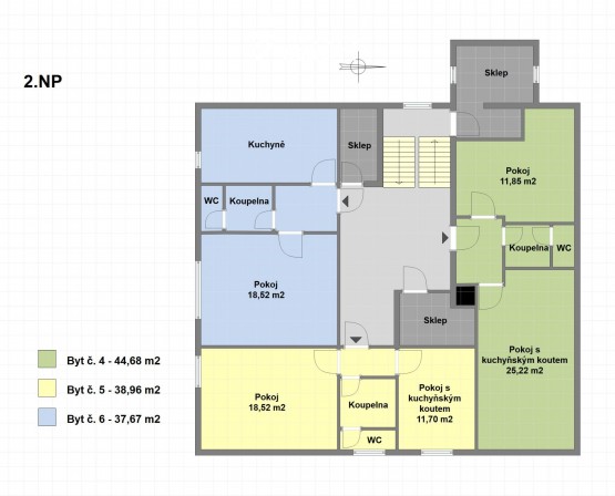
Popis: Nabízíme ke koupi dům s šesti byty v Červené Vodě, okres Ústí nad Orlicí. Tento dům prošel během posledních tří let rozsáhlou rekonstrukcí, kdy na každém ze dvou podlaží byly vybudovány tři byty.
V prvním nadzemním podlaž...í, vpravo, se nachází byt č. 1 s dispozicí 1+kk o užitné ploše necelých 40 m2. Ve stejném podlaží, vlevo, je umístěn byt č. 2 s dispozicí 1+kk o výměře přes 60 m2. Třetím bytem na stejném podlaží je byt s dispozicí 1+kk se necelými 43 metry. Ke každému z těchto bytů tvoří příslušenství sklep. Ve druhém nadzemním podlaží jsou vybudovány opět tři byty, všechny s dispozicí 2+kk a výměrami od 38 do 45 m2. Ke každému bytu přísluší užívání jednoho ze tří sklepů. Vytápění objektu zajišťuje centrální plynový kotel, v každém bytě jsou radiátory osazeny měřiči spotřebovaného tepla. Voda je ohřívána individuálními bojlery. Měřiče elektřiny a vody jsou pro každý byt samostatné. Celý objekt je napojen na obecní kanalizaci.

Byty jsou v současné době obývány nájemníky. Podrobnější informace ohledně výnosů z nájmů a dodělávek na domě sdělíme na vyžádání.

Objekt není zatížen žádným zástavním právem ani věcným břemenem.
  • Vložení inzerátu:
    15.11.2021
  • Kód:
    2021015
  • K dispozici od:
    0.0.0
  • Typ nemovitosti:
    Ostatní
  • Typ budovy:
    Cihlová
  • Zastavěná plocha:
    626 m2
  • Podlahová plocha:
    355 m2
  • Plocha parcely:
    957 m2
  • Stav objektu:
    Po rekonstrukci
  • Rok rekonstrukce:
    2019
  • Umístění objektu:
    Klidná část
  • Voda:
    dálkový vodovod
  • Elektřina:
    230 V, 380 V
  • Doprava:
    vlak, silnice, autobus
  • Topeni:
    ústřední plynové
  • Plyn:
    plynovod
  • Odpad:
    kanalizace
  • Energetická náročnost:
    G - Mimořádne nehospodárná
  • Nabídky v okolí:
  • Informace o obci:
    Obec Červená Voda má 3096 obyvatel, z toho 2116 v produktivním věku.
    V obci se nachází pošta.
    V obci se nachází škola, popř. školka.
    V obci se nachází zdravotní zařízení.
    V obci je rozvod kanalizace.
    V obci je rozvod městské vody.
    V obci je rozvod plynu.
Lokalita: Červená Voda , okres Ústí nad Orlicí, Česká republika Červená Voda , okr. Ústí nad Orlicí, Pardubický kraj