• Sledovat cenu
  •  

Zasílání upozornění emailem:

Komerční objekt 221 m2 - Sokolova 1, Brno, okr. Brno-město (již není v nabídce)

Cena: 0 Kč
Stav:archiv
221 m2, parcela 297 m2
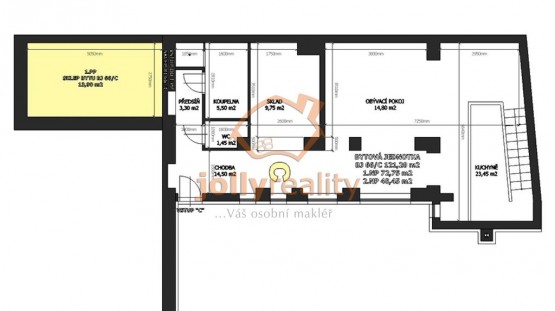
Popis: Ve výhradním zastoupení majitele nabízíme bytový dům s projektem a stavebním povolením na tři bytové jednotky se čtyřmi parkovacími místy ve dvoře.
Stávající budova je ze smíšeného zdiva v rozestavěném stavu. V přední části... domu do ulice jsou dvě menší bytové jednotky 1+1 o ploše 44, 5 m2 v přízemí domu a podkrovní 2+KK o ploše 55, 5 m2 v prvním patře. Na dvoře je projektovaný slunný atypický dvoupatrový byt 5+KK o ploše 121 m2 s velkou terasou 40 m2.
Jedná se o rohový dům s vnitřním dvorem určeným pro parkování o celkové výměře pozemku 297 m2.
Dům má platné stavební povolení na tři bytové jednotky a projekt je k nahlédnutí na prohlídce.
Na pozemek jsou přivedeny veškeré sítě (elektřina, voda, plyn a kanalizace). Vjezd na pozemek je bránou z hlavní komunikace.
Veškerá občanská vybavenost je dostupná v okolí. Ulice Sokolova se nachází 1 km od exitu D1 (194. km) s pohodlným přístupem na Prahu, Bratislavu, Ostravu a Znojmo. Nákupní centra jsou pohodlně dostupná bez zajíždění do centra města (Futurum, Avion, Olympie, atd. ). Přímo u domu je zastávka MHD a do 1 km zastávka tramvaje a vlaku (Horní Heršpice).

Jedná se o zajímavou možnost investice v žádané lokalitě města Brna.
Budoucí majitelé nebo nájemci získají bytové jednotky s parkováním a dobrou občanskou dostupností do centra města, na dálnici a k nově budované zóně jih s vlakovým nádražím.

Pro více informací a domluvení prohlídky prosím kontaktujte makléře.
  • Vložení inzerátu:
    25.11.2019
  • Kód:
    1903139
  • K dispozici od:
    0.0.0
  • Typ nemovitosti:
    Ostatní
  • Zastavěná plocha:
    138 m2
  • Podlahová plocha:
    221 m2
  • Plocha parcely:
    297 m2
  • Stav objektu:
    Před rekonstrukcí
  • Umístění objektu:
    Klidná část
  • Telekomunikace:
    Internet
  • Voda:
    dálkový vodovod
  • Elektřina:
    230 V, 380 V
  • Doprava:
    silnice, dálnice, MHD, autobus, vlak
  • Plyn:
    plynovod
  • Odpad:
    kanalizace
  • Komunikace:
    dlážděná
  • Energetická náročnost:
    G - Mimořádne nehospodárná
  • Nabídky v okolí:
  • Informace o obci:
    Obec Brno má 371371 obyvatel, z toho 256490 v produktivním věku.
    V obci se nachází pošta.
    V obci se nachází škola, popř. školka.
    V obci se nachází zdravotní zařízení.
    V obci je rozvod kanalizace.
    V obci je rozvod městské vody.
    V obci je rozvod plynu.

Podobné nabídky v okolí

Lokalita: Sokolova 1, Brno, okres Brno-město, Česká republika Sokolova 1, Brno, okr. Brno-město