• Sledovat cenu
  •  

Zasílání upozornění emailem:

Komerční objekt 1343 m2 - Habrmannovo náměstí, Plzeň, okr. Plzeň-město

Cena: 65 000 000 Kč
Stav:Volný
1343 m2, cihlová, parcela 392 m2
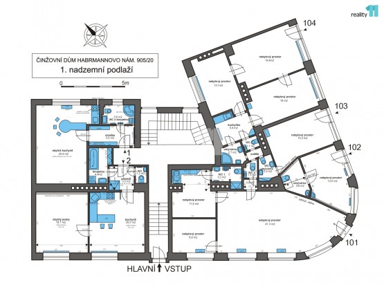
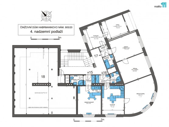
Popis: Reality 11 Vám zprostředkují prodej velkého bytového domu s komerčními prostory (celkem 22 jednotek), v Plzni - Doubravce, na nároží Habrmannovo náměstí a Masarykovy ulice. Čtyřpodlažní dům o celkové užitné ploše 1343 m²... disponuje sedmnácti byty o dispozici 2+kk a 1+kk, čtyřmi komerčními prostory s vchodem z Masarykovy ulice (banka, kosmetický salon, pojišťovací kancelář, vinotéka), jedním komerčním prostorem v suterénu domu (kadeřnictví) a půdou ve IV. podlaží s projektem podkrovní vestavby bytu 3+kk. V suterénu domu se dále nachází sklepní kóje k bytům a další skladovací prostory pro správu domu.
Celý dům prošel v r. 2010 kompletní rekonstrukcí, včetně rekonstrukce patnácti bytů a čtyř nebytových prostor, nárožní nebytový prostor (původně Česká pošta, nyní Partners banka) prošel kompletní rekonstrukcí v r. 2024. Vytápění bytů je zajištěno samostatnými plynovými kotli (byty 2+kk) a plynovými topidly WAW (byty 1+kk). Zajištěny jsou pravidelné revize plynových spotřebičů, spalinových cest, elektroinstalace, požární ochrany a hromosvodů. Celý dům je ve velice dobrém technickém stavu s pravidelnou údržbou a průběžnými investicemi do nemovitosti. Nemovitost není zatížena žádnými zástavními právy, věcnými břemeny ani jinými právními vadami.
Bytový dům je dlouhodobě plně funkční, všechny byty a nebytové prostory v domě jsou pronajaty solidním nájemcům za odpovídající tržní nájemné. Provoz domu je kvalitně veden vlastní správou, včetně dlouhodobé spolupráce s účetní firmou a realitní kanceláří. Celý zkušený tým podílející se na provozu a správě domu (včetně údržby a úklidu) lze po prodeji převzít k pokračující spolupráci.
K bytovému domu je vypracována aktuální technická a cenová nabídka ke zhotovení domovního výtahu. K dispozici nový Průkaz energetické náročnosti budovy.
Dále je k bytovému domu připravena veškerá dokumentace Prohlášení vlastníka budovy pro rozdělení domu v katastru nemovitostí na 22 samostatných jednotek (byty a nebytové prostory). Toto prohlášení lze neprodleně podat na Katastrální úřad, případně bude tato dokumentace předána při prodeji k dalším úpravám a následnému podání dle představ nového vlastníka.
Dům je z části orientován na Habrmannovo náměstí, které má parkový charakter a je též oblíbeným místem kulturních a společenských akcí obvodu Plzeň 4 – Doubravka. Bezplatné parkování okolo Habrmannovo náměstí a v přilehlých ulicích. Rozsáhlá občanská vybavenost je v blízkosti v rámci páteřní Masarykovy ulice, včetně více linek MHD do centra a dalších čtvrtí města.
Veškeré podrobnější informace o nabídce při osobním jednání. Ev. číslo: 28153. Energetický štítek: E (174 kWh/m2/rok).
  • Vložení inzerátu:
    17.4.2026
  • Kód:
    4211950
  • Typ nemovitosti:
    Ostatní
  • Typ budovy:
    Cihlová
  • Zastavěná plocha:
    347 m2
  • Podlahová plocha:
    1343 m2
  • Plocha parcely:
    392 m2
  • Sklep:
    Ano
  • Stav objektu:
    Po rekonstrukci
  • Umístění objektu:
    Rušná část
  • Energetická náročnost:
    E - Nehospodárná
  • Ukazatel náročnosti:
    174 kWh/m2
  • Nabídky v okolí:
  • Informace o obci:
    Obec Plzeň má 168808 obyvatel, z toho 116966 v produktivním věku.
    V obci se nachází pošta.
    V obci se nachází škola, popř. školka.
    V obci se nachází zdravotní zařízení.
    V obci je rozvod kanalizace.
    V obci je rozvod městské vody.
    V obci je rozvod plynu.
Lokalita: Habrmannovo náměstí , Plzeň, okres Plzeň-město, Česká republika Habrmannovo náměstí, Plzeň, okr. Plzeň-město

Kontakt

kancelář Plzeň



Volná pracovní místa ExpertPrace.cz
  • Objednání prohlídky a více informací
  •  
  • Poslat na e-mail
  •  

Zasílání odkazu na realitu emailem: